时间:2023-03-03 10:51
人气:
作者:admin
0
概述
机场人流比较密集,光源数量较多,照明用电在机场电能消耗中约占到27%~30%左右。所以合理使用照明控制系统,在提升工作人员和旅客的体验情况下最大程度使用自然光照明,通过感应控制做到人来灯亮,人走灯灭或保持低强度照明,尽量解决照明用电。
安科瑞智能照明控制解决方案ALIBUS(Acrel Lighting intelligent Bus)基于成熟的RS485通讯控制技术,同时创新地引入了载波侦听和冲突碰撞检测机制,多机间实现了实时双向通讯,线材使用普通的屏蔽网线,一次性解决通讯与供电问题。
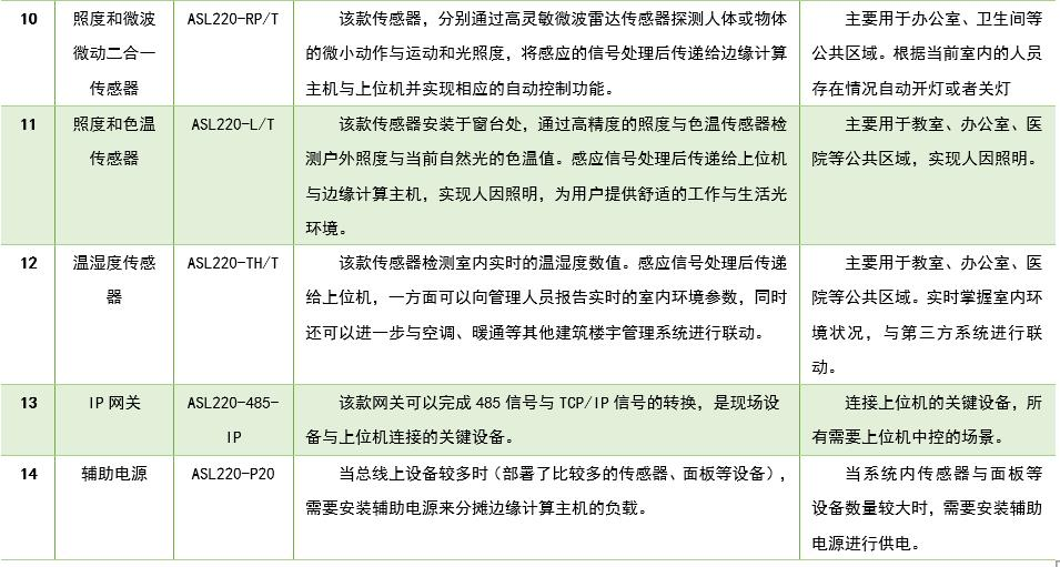
需安装在配电箱内的模块主要有开关驱动器、调光驱动器、IP网关等,这些模块使用35mm标准导轨安装;需安装在控制现场的模块主要有传感器和智能面板,其中传感器作为自动控制感应模块,嵌入式安装在房间、走廊顶部,用于检测相关区域是否有人员活动。有人经过时可以设定自动控制亮灯,人离开后在设定的时间内熄灯。智能面板等手动控制设备,可嵌墙安装在机房入口处,这样可实现自动控制、现场控制和值班室远程控制相结合。
系统支持单控、区域控制、自动控制、感应控制、定时控制、场景控制、调光控制等多种控制方式,支持延时控制,避免同时亮灯负荷对配电系统造成冲击。模块不依赖系统,可独立工作,每个模块均自带时间模块,可根据经纬度自动识别日出日落时间实现自动控制功能。
1
参考标准
GB/T 20965-2013 《控制网络HBES技术规范 住宅和楼宇控制系统》
3
配置方案


4
系统结构

5
系统功能
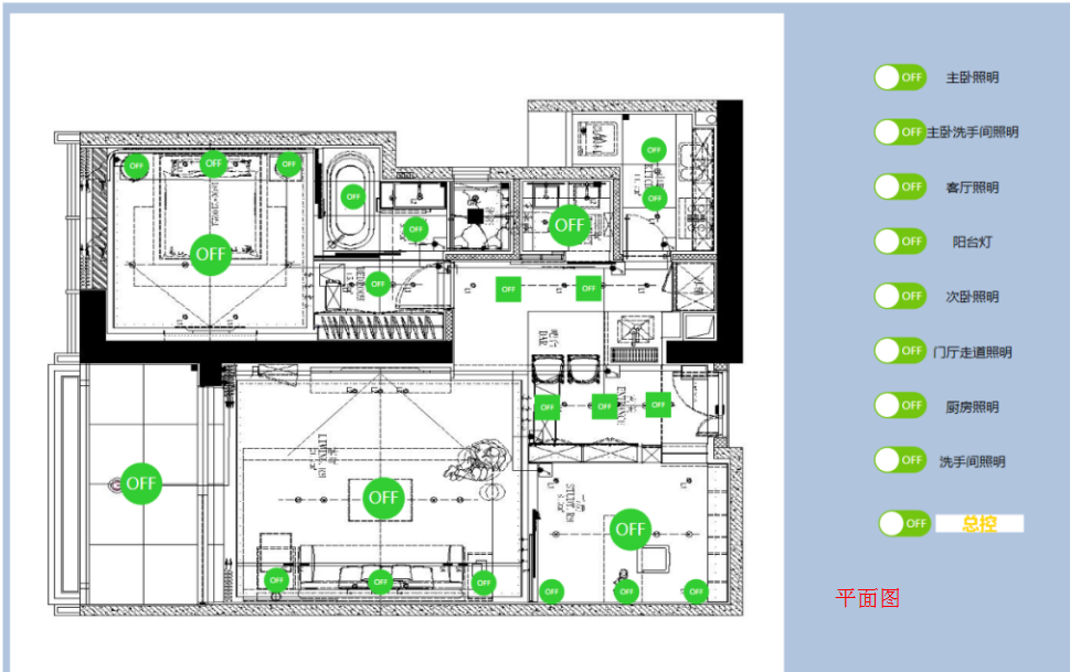
●区域控制
可以通过电脑或者触控终端控制一栋楼、某一层或某个区域所有照明灯具开关。可以对单个照明回路实现开关控制,还可对每个模块、箱子、楼层、自定义分区实现总控。现场受控回路的开关状态会实时反馈。

●调光控制
拖动调光控件,照明设备从0%到100%进行调光,点击左右两边的符号,可进行步进调光,一个步进增加/减少20%;通过图标的亮灭状态反馈现场开关的状态。
点击模块调光单控可以对一个模块的照明回路实现调光控制;
点击调光总控,可以对多个照明回路实现调光控制。

●定时控制
智能照明控制系统通过时钟管理器,实现有关区域照明的定时和自动管理功能,实现走廊、公共通道、景观照明、泛光照明、车库照明定时控制。如百叶窗定时升降、集中供热定时调节、节假日照明定时关闭、定时通知等。

●场景控制
智能照明控制系统根据不同区域的功能需求,设定不同的场景模式,完成各种照明灯具的控制组合,达到美化工作环境、提高舒适度。

●人体感应控制
在通道、走廊、公共区域、楼梯间、会议室等场所布置人体感应传感器,当人员进入区域时,自动打开照明;当人员离开后,延迟一段时间再关闭,根据需求设定。

●窗帘控制
窗帘控制有两种控件,一种是开关和步进调节功能;另一种是无极调节和步进调节功能。
点击窗帘单控控件,可以开合百叶窗/窗帘或者调整百叶角度;
点击窗帘总控图标,可以对多路窗帘实现调光控制;
通过图标的亮灭状态,反馈现场窗帘的开合状态,数值表示窗帘的相对动作的值。

●电流检测
读取带电流检测开关驱动器所有回路的电流、开关控制,并自动分析回路是否有故障状态。电流值、故障状态显示、开关状态会实时反馈在界面上。
