时间:2020-01-16 09:31
人气:
作者:admin
作为智能传感元件,光纤光栅传感器用于监测系统有着良好的效果。随着光纤光栅传感技术在大型桥梁、建筑结构、健康监测(SHM)等工程中的应用,越来越需要具有大容量、抗干扰性强,灵敏度高而成本较低的光纤光栅传感系统。使用复用技术是实现光纤光栅传感系统大容量的基本方法。
近十年来,复用技术已经在大容量的光纤传感领域被研究和应用,特别是对FBG复用技术的研究受到广泛关注。常用的复用方法有波分复用(Wavelength division nlultipiexing,WDM)、时分复用(time division MULTIplexing,TDM)及频分复用(frequeney division MULTI Plxenig,FDM)。WDM技术受光源带宽和待测物理参量动态范围等因素的制约,在单光纤上复用FBG是有限的,基于ASE宽带光源的WDM光纤Bragg传感系统的容量一般为15~20个。基于TDM技术的系统中。光源调制出一系列间隔时间相等的光脉冲,同一个脉冲到达不同光栅信号返回时间都不同,可用光开关等元件将信号在时域上分离开来。但是所有复用的光栅都是使用同一脉冲光源,光源的强度和光栅及光纤传输的衰减决定了复用传感器的数量小于10。
基于FDM技术的光源调制出连续的脉冲波,脉冲的频率随时间往复变化,不同位置的光栅信号返回的时刻会对应不同的频率,复用信号在频域上被分离。由于FMCW技术的占空比要比TDM技术的大,进入传感光栅阵列的光强更大,所以其复用的光栅数目可达到几十个。
为了进一步提高单光纤上FBG的复用能力,必须设法提高FBG网络的频带利用率。因此,基于CDMA技术的光纤光栅传感系统引起了人们极大的兴趣。基于CDMA技术的光纤光栅传感系统从本质上来说是波分复用技术和码分多址技术的有机结合,因此也被称为CDMA DWDM FBG系统。CDMA技术已经广泛应用于通信领域,但在应用于FBG传感系统则刚刚开始。
在FBG传感系统中使用CDMA技术的特殊优点在于:由于使用相关技术从传感器群返回的复合信号中提取特殊传感器的信号,因此允许传感器反射信号的频谱相互重叠,甚至完全相同,这样就使传感器之间的波长间隔比普通WDM系统小得多,从而使单光纤的复用能力大大增强,实现了密集波分复用。此外,由于CDMA技术和相关技术的共同作用,可以有效地抑制信道噪声和各传感器的串音,从而极大地提高信噪比。因此可实现大容量、抗干扰性强的光纤光栅传感系统。若结合计算机及相应软件强大的数据处理能力,具有潜在的低成本特性。
1 、系统原理与关键技术
1.1 系统工作原理
图1是基于CDMA技术的光纤Bragg光栅传感系统原理图。光源的输出受伪随机序列码(PRBS)的调制,FBG传感阵列对一个给定的PRBS响应与延迟一定时间的同一个PRBS进行相关运算,其结果经低通滤波器滤波后即可得到某一个特定传感器上返回的波长编码信号。经过预先设置传感器位置,再经调制后,光源输出信号到达某一传感器并返回到探测器所需的时间是确定的,因此通过适当选择送到相关器的PRBS的延迟时间,就可确定相关运算结果来自于哪个传感器,即可在获得传感信息的同时实现寻址。

1.2 系统关键技术分析
根据系统原理对其进行分析,可以得到实现系统包含的几个关键技术。
(1)光源调制技术。光源调制技术主要包括2个方面:一是使用哪种伪随机码(PRBS)进行调制;二是如何调制。对于扩频码的选择,在传感系统中不是一个难点。这是因为目前实用系统的传感容量一般在几十到几百,上千或更多的比较少,考虑到基于CDMA技术的光纤光栅传感系统还可以结合其他复用技术(如SDM技术)来扩容,一般选择具有良好自相关和互相关特性的m序列即可实现系统容量的要求。如对于8位m序列,理论上其单光纤上可实现的传感容量即为255。当需要更大容量时,可扩展m序列,也可通过增加传感通道来实现。
如何调制光源,可根据光源的不同来分析。对于窄线宽带光源,一般可用脉冲调制,即在用PRBS来调制每一个光脉冲。对于这样的光源,其系统特点是高功率,传感光栅中心波长相对集中,所以更接近CDMA技术特性——传感光栅之间的光谱可有重叠,甚至完全重叠,在接收端使用相关技术来区分传感光栅。对于宽带光源,一般采用PRBS驱动信号发生器经外调制接口加载到光源上,对其实现连续调制,使光谱在时域上进行调制。该系统特点是结合WDM和CDMA实现DWDM系统,可以更好地利用光源的大带宽和CDMA技术来实现大容量系统。
(2)功率控制技术。虽然相对于CDMA通信系统而言,光纤光栅传感系统的容量、传输距离等是不值一提的,但这并不意味着光纤光栅系统不需要进行功率控制。这是因为:一方面,FBG的反射特性会使FBG阵列中在其后面的FBG功率减少,尤其如果FBG阵列中FNG之间的中心波长间隔不大时,当两FBG频谱有重叠时,更会使后面的FBG反射信号功率减少,从而使其在探测器之后的相关处理受到前面强的FBG反射信号的影响,最终会影响到其解扩的准确性;另一方面,根据CDMA通信系统容量的理论,CDMA系统是自干扰系统,限制CDMA系统容量的因素是总干扰。当达到以下条件时,系统的容量会达到最大,即在可接受的信号质量下,功率最小。这主要与探测器的灵敏度、响应度等有关。基站从各移动台接收到的功率相同,因此在质量一定的条件下要尽可能实现多点监测,也应该对光纤光栅传感系统进行功率控制,使各个传感光栅的反射功率在探测器(或相关处理)处尽可能相同,从而减少弱反射信号被强反射信号干扰现象的发生。
在基于CDMA技术的光纤光栅系统中,要实现功率控制,应从光源功率、光器件插入损耗、光栅的反射率、光栅的中心波长及光传输损耗等方面综合考虑。先通过理论分析,尽可能选择性能优良的光器件,然后结合试验进一步通过调整传感光栅中FBG的前后位置和调整光源功率的大小,选择耦合比合适的光耦合器等来实现系统大容量与优良性能的统一。
2、 定时同步技术
前面的引言及系统原理已提到基于CDMA技术的光纤光栅传感系统是利用相关技术来实现传感器的定位即寻址的。然而PRBS序列的自相关特性,即两相对移动的相同序列只有在某一时间点(或某一小时间段内)相关值达到最大(较大),而在此外的时间段相关值很小。要准确的寻址,其关键点就在于实现在精确时间延迟后给相应解扩通道送PRBS,以实现同步解扩。此项技术关系到整个系统能否成功实现,因此是系统的关键技术重点。获得定时精度的最简单方式是使用一个数据采集卡主板作为精确计时装置。
3 、相关处理技术
相关处理技术是如何将精确延迟的同一PRBS序列与接收到的信号进行相关处理,根据其相关值的大小来准确判断是哪一个传感光栅的信号。
在此,对信号进行差分检测,如图2所示。图中X表示序列自相关解码器;X表示序列与其共轭序列相关解码器。对于m序列调制信号,在一个周期内对确定的延迟时间,X为最大值(归一化后为1)时,X将取到最小值,这样在判决端很容易判别信号。

4 、解调技术
设计该系统的最终目标是对系统进行解调,即采用某种解调方法得到传感光栅中心波长的偏移值,从而推算出待测物理量的参数变化。如何有效地解调是光纤光栅传感系统的研究重点和难点,也是目前的研究热点。已有许多解调方法,如干涉法、滤波法、参量转换法等。
这里主要讨论的是基于CDMA技术的光纤光栅传感系统应采用哪一种解调方法来解调。在此考虑的主要因素有:
(1)该系统是为实现大容量传感而研究设计的,因此该解调方法应适于大容量解调。
(2)系统中采用CDMA技术进行寻址,即运用精确定时、相关处理实现寻址。因此如在寻址前对接收信号进行扫描解调(如F-P扫描解调法),应考虑它对定时的影响。
(3)由于采用延迟码片的方法来区分各个传感光栅,而码片延迟时间一般很短(一般在ms级),尤其在大容量时,如要求延迟时间仅为1个码片时。这就要求采用的解调方法能快速解调,其解调处理速度大于输入信号的更新速度,即实现实时解调;或在该时间间隔内将传感光栅的数据采集并储存,只在需要解调时对其进行解调,即非实时解调。
此外,完善光源、光栅器件以及光耦合器等无源器件的制造技术和光纤光栅的封装技术等也是完善该传感系统性能的基础。
5 、实验研究与结果分析
5.1 实验研究情况
根据上面的理论分析,对系统进行了初步的试验研究。实验方案如图3所示。

实验中,使用TMS320LF2407DSP开发板产生伪随机3阶7位、周期为0.7 ms的m序列,经缓冲放大后调制ASE宽带光源产生m序列光信号,并进入传感网络。传感网络由1只光纤光栅应力传感器(中心波长为1550.84 nm,3dB带宽为0.217nm)及1只裸光纤光栅(中心为1 550.12 nm,3 dB带宽为O.302 nm)串行搭建。响应度为0.9 A/W的光电探测器将传感网络光信号转换成电信号后再将其分两路送入12位精度的数据采集卡,同时DSP板所产生的m序列也由一个通道送入采集卡。从不同位置的光纤光栅反射回来的光信号因其传输距离不一样而产生不同时间的延迟,利用m序列优良的自相关和移位相关特性,通过控制接收端m序列的发送时间就可以对光栅的地址进行识别。
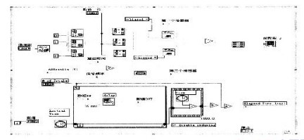
实验中,将采集到的信号在虚拟仪器软件LabVIEW中进行处理。具体处理如下所述:采集卡的3个通道中,第1,2两个通道采集DSP通过缓冲驱动电路后的信号(其中一路信号需要将其延时);第3个通道采集送光电探测器探测到的信号。将3个通道的信号在同步节点下送入系统程序,程序后面板程序如图4所示。

在第1个光纤光栅传感器直接接入光路并考虑光速很大的情况下,其延时值以0处理。由于没有光纤延时线,系统主要解调这个传感器。第2个光栅与第一个传感器之间连接了22 m的光纤,其延时值为0.15 ms(实际处理中考虑了硬件延时,设置为2个码片的延时)。
根据系统原理,当信道的相应延时来到时,有尖锐的自相关出现,如图5所示。对于其他通道,相同时刻的相关值很小。由此可以准确地对相应的传感光栅进行定位,即寻址。

5.2 实验结果分析
实验中,利用LabVIEW对采集信号进行处理,实现了光纤光栅传感系统基于CDMA的准确寻址,但仍有一些问题有待解决:
(1)实验中,采用的FBG的反射率均高达99%,所以不可能实现频谱重叠时的寻址。进一步的实验重点是应使用反射率较低的FBGS来检验在频谱重叠时其相关寻址特性;频谱重叠时,反射率多大时,得到的寻址特性最好,以及频谱重叠时能实现寻址的光栅反射率的上限和下限。
(2)实验虽实现了基于CDMA的寻址,但系统的最终目的——解调还未实现。文献给出使用可调谐激光器扫描来实现解调;文献给出使用匹配滤波法实现解调。但是,可调谐激光器的扫描速度慢、滞后性以及价格高,使其难以实用化;匹配滤波法不便于大容量解调,因而不是该系统理想的解调方式。因此,寻找一个适于该系统的解调方法(算法)是系统研究的重点。
利用当前计算机及相应软件的高速数据处理能力,并基于相关技术来实现解调可以作为一个发展思路。
6 、结语
对大容量光纤光栅系统常用的复用技术(WDM技术、TDM技术、FDM技术)中传感容量、CDMA技术的特点做了介绍。阐述了基于CDMA技术的光纤Bragg光栅传感系统的原理及其关键技术,并对该系统做了初步实验研究,实现了基于CDMA技术的准确寻址。通过总结分析可以看出,大容量、抗干扰性强以及具有潜在低成本特性的基于CDMA技术的光纤光栅传感系统有着广阔的发展前景和应用前景。虽然目前仍有不少关键技术有待解决和完善,但通过引鉴(移植)目前及发展的CDMA通信技术中已成熟的技术与光器件技术结合,运用强大的虚拟仪器软件LabVIEW进行数据处理,必要时可结合Matlab工具来实现性能优、界面好的解调系统,相信基于CDMA技术的光纤Bragg光栅传感系统将在未来的传感领域占有一席之地。
责任编辑:gt