时间:2022-11-08 10:23
人气:
作者:admin
虹科案例 | 增量式编码器&紧急停止开关之案例研究(下)
✦✦✦
HongKe.
✦✦✦传感器

虹科增量式编码器为全光学设计,不受任何电磁干扰,常用于检测电机轴或线性致动器的运动和速度;虹科紧急停止开关的单个开关距离控制器最远可达10 公里,或用于有强电磁场的区域或在危险的环境中或在远距离的情况下使用。您如有相关需要,欢迎随时联系我们!
案例研究3
基础设施

✦ 挑战 ✦
须从远处向中央控制设备柜进行远距离的无干扰传输。光纤电缆和电机驱动线路从水下穿过,总距离超过680 英尺。
✦ 解决方案 ✦
桥梁的每一侧都使用两个卷筒葫芦来提升该侧的桥梁部分。HK-MR 344光纤空心轴编码器安装在每个卷筒葫芦/ 电动机的背面,可以同步提升桥梁部分,让船舶能够通过

升降桥控制图
(注:MR320由MR340替代;MR324由 MR344替)
案例研究4
国防与航天航空


NASA发射装置控制图
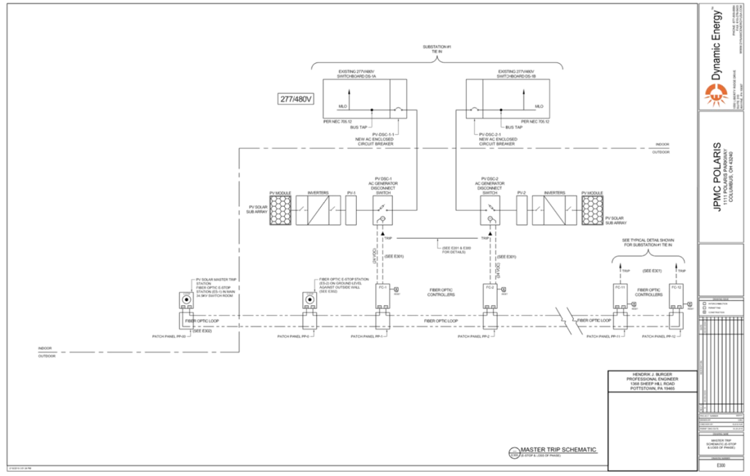
案例研究5
动力

✦ 挑战✦
太阳能电池板承包商需要能够断开多个远程阵列与当地电网断开的单点急停系统。
✦ 解决方案✦
运行逻辑特殊的HK-MR380控制器允许所有控制器和急停装置在一个回路中连接。一旦触发急停装置,DIN控制器继电器就会将太阳能逆变器节点与电网断开。系统可由任何控制器通过特殊输入手动复位。

循环移动、多个节点、单点触发
SOC-224
承包商:动态能源解决方案
总急停装置=2个控制器节点=12

利用内部继电器断开电网
循环移动、多个节点、单点触发
SOC-224
承包商:动态能源解决方案
总急停装置=2个控制器节点=12个最长链路=2776m光纤类型=OM2 50/125

关于我们
虹科传感器技术
我们致力于更加精确简单的测量方案,与全球领先的高精度、高可靠性的传感器厂家进行技术合作,为客户提供全球先进的测量方案,包括激光测距、粘密度测量、光纤传感器、机电传感器等。通过提供各种不同的技术进行关键测量,消除了在恶劣严苛环境中对传感的限制,使客户能够得到最理想的结果。