时间:2018-05-18 01:22
人气:
作者:admin
OnSemi公司的NCP1337是一款结合电流模式调节器和退磁检测器的芯片,以充分确保边界线/临界传导模式在任何负载/传输线条件连同最低漏电压开关(准-谐振操作)。因为Soxyless概念,变压器铁心重置检测在内部完成,没有使用任何外部信号。根据CISPR-22 EMI限制标准,内部频率被限制于130kHz,防止控制器操作达到150kHz。该芯片具有过载保护重启功能,一旦过载,设备会自动重启恢复。本文主要介绍NCP1337芯片、芯片特性、应用方向及内部结构图。本文还介绍了采用NCP1337芯片作为主芯片的60W参考设计方案,给出该方案的介绍、方案原理图、PCB制板图及元器件清单列表。
The NCP1337 combines a true current mode modulator and a demagnetization detector which ensures full Borderline/Critical Conduction Mode in any load/line conditions together with minimum drain voltage switching (Quasi−Resonant operation). The transformer core reset detection is done internally, without using any external signal, due to the Soxyless concept. The frequency is internally limited to 130 kHz, preventing the controller to operate above the 150 kHz CISPR−22 EMI starting limit.
By monitoring the feedback pin activity, the controller enters skip mode as soon as the power demand falls below a predetermined level. As each restart is softened by an internal Soft−Skip_, and as the frequency cannot go below 25 kHz, no audible noise can be heard.
The NCP1337 also features an efficient protective circuitry which, in presence of an overcurrent condition, disables the output pulses and enters a safe burst mode, trying to restart. Once the default has gone, the device auto−recovers. Also included is a bulk voltage monitoring function (known as brown−out protection), an adjustable overpower compensation, and a VCC OVP. The controller immediately restarts after any of these conditions, unless the fault timer has timed out. Finally, an internal 4.0 ms soft−start eliminates the traditional startup stress.
• Free−Running Borderline/Critical Mode Quasi−Resonant Operation
• Current−Mode
• Soft−Skip Mode with Minimum Switching Frequency for Standby
• Auto−Recovery Short−Circuit Protection Independent of Auxiliary Voltage
• Overvoltage Protection
• Brown−Out Protection
• Two Externally Triggerable Fault Comparators (one for a disable function, and the other for a permanent latch)
• Internal 4.0 ms Soft−Start
• 500 mA Peak Current Drive Sink Capability
• 130 kHz Max Frequency
• Internal Leading Edge Blanking
• Internal Temperature Shutdown
• Direct Optocoupler Connection
• Dynamic Self−Supply with Levels of 12 V (On) and 10 V (Off)
• SPICE Models Available for TRANsient and AC Analysis
• These are Pb−Free Devices*
NCP1337应用:
• AC−DC Adapters for Notebooks, etc.
• Offline Battery Chargers
• Consumer Electronics (DVD Players, Set−Top Boxes, TVs, etc.)
• Auxiliary Power Supplies (USB, Appliances, TVs, etc.)

图1. NCP1337内部方框图
This design using NCP1337 offers a perfect solution for portable DVD, LCD TV, or monitor and notebook adapter applications. This adapter provides effective protection functions such as over-load protection, over-voltage protection, shortcircuit protection and brown-out protection. Thanks to the quasi-resonant operation and synchronous rectifier, this adapter has high efficiency and improved EMI performance. The standby consumption is lower because of the cycle skipping and soft ripple mode.

图2. NCP1337ADAPGEVB方案原理图
NCP1562-100WGEVB方案材料清单:


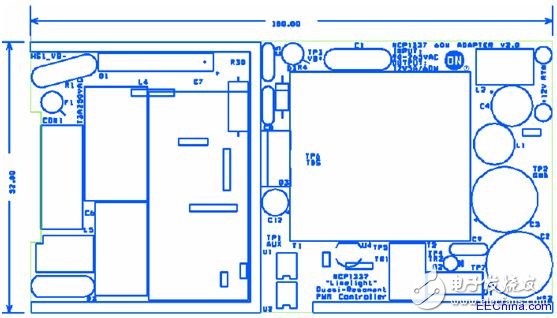
PCB元件布局图:



