时间:2023-12-14 09:41
人气:
作者:admin
一.线路板简介
1.挠性印制电路板
挠性印制电路板(FlexPrintCircuit,简称“FPC”),是使用挠性的基材制作的单层、双层或多层线路的印制电路板。它具有轻、薄、短、小、高密度、高稳定性、结构灵活的特点,除可静态弯曲外,还能作动态弯曲、卷曲和折叠等。
2.刚性印制电路板
刚性印制电路板(PrintedCircuieBoard,简称“PCB”),是由不易变形的刚性基板材料制成的印制电路板,在使用时处于平展状态。它具有强度高不易翘曲,贴片元件安装牢固等优点。
3.软硬结合板
软硬结合板(RigidFlex),是由刚挠和挠性基板有选择的层压在一起组成,结构紧密,以金属化孔形成电气连接的特殊挠性印制电路板。它具有高密度、细线、小孔径、体积小、重量轻、可靠性高的特点,在震动、冲击、潮湿环境下其性能仍很稳定。可柔曲,立体安装,有效利用安装空间,被广泛应用于手机、数码相机、数字摄像机等便携式数码产品中。刚-柔结合板会更多地用于减少封装的领域,尤其是消费领域。
二.线路板材料介绍
1、 导电介质:铜(CU)
﹣铜箔:压延铜(RA)、电解铜(ED)、高延展性电解铜(HTE)
﹣厚度:1/4OZ、1/3OZ、1/2OZ、1OZ、2OZ,此为较常见的厚度
﹣OZ(盎司):铜箔厚度单位;1OZ = 1.4 mil
2、绝缘层:聚酰亚胺(Polyimide)、聚脂(Polyester)、聚乙稀萘(PEN)
﹣较常用的为聚酰亚胺(简称“PI”)
﹣PI厚度:1/2mil、1mil、2mil,此为较常见的厚度
﹣1 mil = 0.0254mm = 25.4um = 1/1000 inch
3、 接着剂(Adhesive):环氧树脂系、压克力系。
﹣较为常用的是环氧树脂系,厚度跟据不同生产厂家的不同而不定
4、覆铜板(Cucladlaminates,简称“CCL”):
﹣单面覆铜板:3LCCL(有胶)、2LCCL(无胶),以下为图解。

﹣双面覆铜板:3LCCL(有胶)、2LCCL(无胶),以下为图解。

5、覆盖膜(Coverlay ,简称“CVL”) :由绝缘层和接着剂构成,覆盖于导线上,
起到保护和绝缘的作用。具体的叠层结构如下


2、导电银箔:电磁波防护膜
﹣类型:SF-PC6000(黑色,16um)
﹣优越性:超薄、滑动性能与挠曲性能佳、适应高温回流
焊、良好的尺寸稳定性。
常用的为SF-PC6000,叠层结构如下:

三.Rigid-Flex叠构展示

四.线路板制作流程

1、开料:裁剪 Cutting/Shearing
2、机械钻孔CNCDrilling
3、镀通孔PlatingThroughHole





4、DES制程(五部曲)
(1).贴膜(贴干膜)
(2).曝光
作业环境:黄光
作业目的:通过UV光照射和菲挡,菲林透明的地方和干膜发生光学聚合
反应,菲林是棕色的地方,UV光无法穿透,菲林不能和其对
应的干膜发生光学聚合反应。
(3).显影
作业溶液: Na2CO3(K2CO3)弱碱性溶液
作业目的:用弱碱性溶液作用,将未发生聚合反应之干膜部分清洗掉

(4).蚀刻
作业溶液:酸氧水:HCl+H2O2
作业目的:利用药液将显影后露出的铜蚀刻掉,形成图形转移。

(5).剥膜
作业溶液:NaOH强碱性溶液

5、AOI
主要设备:AOI、VRS系统
已形成线路的铜箔要经过AOI系统扫描检测线路缺失。标准线路图像信息以数据形 式存储于AOI主机中,通过CCD光学取像头将铜箔上线路信息扫描进入主机与存储之标准数据比较,有异常时异常点位置会被编号记录传输到VRS主机上.。VRS上会对铜箔进行300倍放大,依照事先记录的缺点位置依次显示,通过操作人员判断其是否为真缺点,对于真缺点会在缺点位置用水性笔作记号。以方便后续作业人员对缺点分类统计以及修补。作业人员利用150倍放大镜判断
缺点类型,分类统计形成品质报告,并反馈到前制程以方便改善措施之及时执行。由于单面板缺点较少,成本较低,难于使用AOI判读,所以使用人工肉眼直接检查。
6、假贴
保护膜作用:1)绝缘、抗焊锡作用;
2)保护线路;
3)增加软板的可挠性等作用。

7、热压合
作业条件:高温高压
8、表面处理
热压完后,需对铜箔裸露的位置进行表面处理。
方式依据客户要求而定

9、丝印
主要设备:网印机.烤箱.UV干燥机.网版制版设备通过网印原理将油墨转到产品上.主要印刷产品批号,生产周期,文字,黑色遮蔽,简单线路等内容.通过定位PIN将产品与网版定位,通过刮刀压力将油墨挤压到产品上.网版为文字和图案部分部
分开通,无文字或图案部分被感光乳剂封死油墨无法漏下.印刷完毕后,进入烤箱烘干,文字或图案印刷层就紧密结合在产品表面.一些特殊产品要求有部分特殊线路,如单面板上增加少许线路实现双面板功能,或是双面板增加一层遮蔽层都必须通过印刷实现. 如油墨为UV干燥型油墨,则必须使用UV干燥机干燥.常见问题:漏印、污染、缺口、突起、脱落等.
10、测试(O/S检测)
测试治具+测试软件对线路板进行功能全检
11、冲制
相应的外形膜具:刀膜、激光切割、蚀刻膜、简易钢模、钢模
12、加工组合
加工组合即根据客户要求组装配料,如要求供应商组合的有:
A.不锈钢补强
B.铍铜片/磷铜片/镀镍钢片补强
C.FR4补强
D.PI补强
13、检验
检验项目:外观、尺寸、可靠性
检测工具:二次元、千分尺、卡尺、放大镜﹑锡炉﹑拉力
14、包装
作业方式:1.塑胶袋+纸板
2.低粘着包材
3.制式真空盒
4.专用真空盒(抗静电等级)
双面PCB板制作流程图

软硬结合板制作流程图

五.线路板案例分享
一、设计方案
1.方案说明:
• 新型COF方案,是补强与芯片贴附区域在一体式钢片上,见FPC示意图。
• 主要的用途:
• 1.让sensor尽量减少与不平整的线路板的表面贴合,直接将sensor与平整的钢片表
面贴合,使sensor与光学镜头的光轴垂直,减少像糊不良。
• 2.在≤0.3mm的方案上,新型COF平整度优于软硬结合板,在保证平整度的前提下
,达到降低模组高度的目的。
• 3.sensor与钢片直接接触,增强导热效果。

2.设计方案
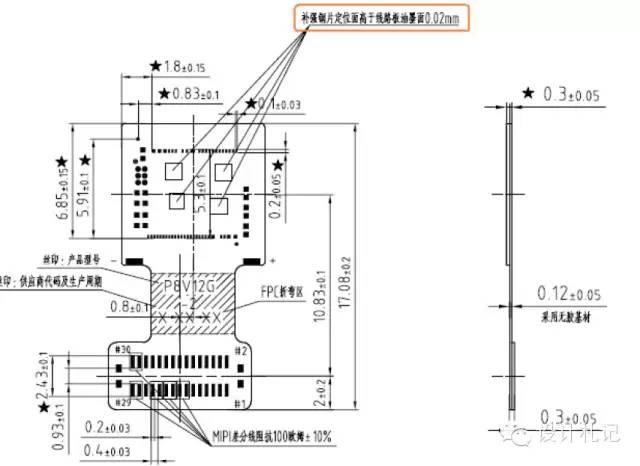
1).P8V12G-621-00线路板(结构图如下:)
线路板设计厚度0.3mm,钢片凸台高度0.02mm。

2).P8V12G-621-00线路板(布线图如下:)

3).P8V12G-621-00线路板(叠构图如下:)

4).线路板方案设计局限性评估:
1、图中紫色小框为钢片支撑区域;
2、支撑区域以SENSOR对角线分布;
3、支撑区域最小开窗面积0.5*0.5,面积越大对
平整度越佳;
4、模组头部尺寸≥8.5*8.5;
5、SENSOR管脚数量≤80;
6、MIPI2Lane输出相比4Lane输出,更有利走
线;
7、MIPI位于连接器近端时更有利走线(如右图
MIPI走线位下方焊盘);

3.优劣势对比分析

4.平整度数据对比:
P8V12G不同类型下平整度对比:

P8V12G不同类型下,过炉前后平整度变形量对比:

审核编辑:黄飞