时间:2021-11-19 13:17
人气:
作者:admin

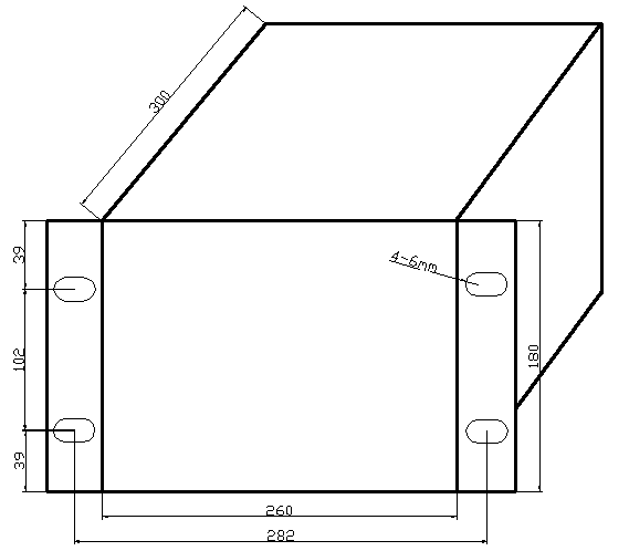
1 安装开孔图
装置为嵌入式安装方式,可以集中安装于控制室的屏柜上,也可分散安装于开关柜上。


外形尺寸260*180*300(mm) 开孔尺寸260*180(mm)
第六章 人机界面
本装置配置TFT彩色液晶屏,界面显示具有中英文选择功能,显示界面完全图形化设计风格。界面操作类似Windows 的操作方法,简单易用。此外,在人机对话操作中,为防止误操作影响装置的正常运行,本装置在一些功能中设置了密码,密码在出厂时默认设置为空,即直接按确认键即可。
6.1开机界面

本设备在上电后大约10~15秒后点亮屏幕,并显示此开机启动界面。等待机器完成启动自检和初始化工作。自检和系统初始化全部完成大约需要30~40秒钟。此过程结束后切换至数据显示界面。
6.2按键的基本功能
“﹢”——用于向后切换通道; “﹣”——用于向前切换通道;
“↑”——方向键,用于向上移动光标;
“↓”——方向键,用于向下移动光标;
“→”——方向键,用于向右移动光标;
“←”——方向键,用于向左移动光标;
“取消”——用于放弃当前操作,或退出正在显示的内容;
“确认”——用于确认各项操作;
6.3主菜单

6.4操作指南
6.4.1查看实时数据
在主菜单中可以通过“↑”,“↓”键分别查看各项电能质量指标数据,并且可以通过“确认”键进入二级菜单查看各类子项数据。同时“确认”键也可进入某些子项显示界面,可通过方向键进行翻屏或选择查看内容。
6.4.2查看实时图形
在“实时波形”界面可查看电压和电流的实时波形;在“基波向量”下可查看电压电流矢量图;在“波动闪变”界面可查看电压有效值的实时波形;在“历史统计”中可查看暂态事件波形。
6.4.3查看和设置变比
在“系统配置”—“电能参数”界面可进行线路PT变比,CT变比设置,还可以进行暂态事件和稳态事件定值设置。
注:1. 当设置完以上定值后,必须按“保存参数”定值才生效。
2. 装置出厂时,默认定值为“0”(即退出越限报警),为确保装置能够正常提示越限告警及记录事件,请不要随便修改定值。如需了解或修改定值,请翻阅本手册附表列出的定值说明。
6.4.4设置时间
1. 手动设置时间
在“系统配置”—“系统参数”—“终端校时”—“手动设置时间”对话框中手动输入相应时间,输入完毕按“确认”键,新设置时间生效。
2. 网络校时
在“系统配置”—“系统参数”—“终端校时”—“网络服务器同步校时”对话框中输入服务器IP地址和端口号,输入完毕按“确认”键,装置自动同步服务器时间(上位机需装对时软件)。
3. B码校时
在“系统配置”—“系统参数”—“终端校时”—“B码校时”中可开启B码校时功能,装置后端子需接入相应的B码信号,装置自动同步B码时钟。(GPS对时为选配功能)
6.4.5设置通讯参数
1. 串口参数设置
在“系统配置”—“系统参数”—“网络设置”—“COMx波特率”中输入相应波特率,按“更新COMx”即可生效。
注:出厂默认COM1用作RS485通讯口(默认modbus规约,地址为1,“协议设置”中查看及修改);COM2用作B码对时口。
2. 网口参数设置
在“系统配置”—“系统参数”—“网络设置”—“网口x MAC地址/IP地址/子网掩码”中输入相应值,按“更新MAC/网口x”即可生效。
注:MAC地址:硬件地址(Medium Access Control)用来定义网络设备的位置,它是由网卡决定的,是固定的。
IP地址:互联网协议地址(Internet Protocol Address),是IP协议提供的一种统一的地址格式,它为互联网上的每一个网络和每一台主机分配一个逻辑地址,以此来屏蔽物理地址的差异。
子网掩码:网络掩码(subnet mask) 它是一种用来指明一个IP地址的哪些位标识的是主机所在的子网,以及哪些位标识的是主机的位掩码。子网掩码不能单独存在,它必须结合IP地址一起使用。子网掩码只有一个作用,就是将某个IP地址划分成网络地址和主机地址两部分。是一个32位地址,用于屏蔽IP地址的一部分以区别网络标识和主机标识,并说明该IP地址是在局域网上,还是在远程网上。
3. FTP上传参数设置
在“系统配置”—“系统参数”—“网络设置”—“FTP xxxx”中输入相应值,按“更新FTP”即可生效。
4. 网关IP参数设置
在“系统配置”—“系统参数”—“网络设置”—“默认网关IP地址”中输入相应值,按“更新网关”即可生效。
6.4.6 选择线路设置

本装置的A-A0,B-B0,C-C0三相作为1个测量通道,并标示为CHxx(见上图),由于采用先进的通道同步技术,所以各个测量通道可以根据需要配置为测量线路的电压或电流通道。
例如:
“Line_1”用CH01测量线路1的电压U;
用CH02测量线路1的电压I;
“Line_2”用CH03测量线路2的电压U;
用CH04测量线路2的电压I;
装置可配置为
用CH01测量I段母线电压U;
“Line_1”用CH02测量I段母线出线电流I1;
“Line_2”用CH03测量I段母线出线电流I2;
“Line_3”用CH04测量I段母线出线电流I3;
注:出厂时已根据用户要求配置,相应线路电压电流标签会贴在CHxx下方,配线之前请进行确认,用户无须更改。
6.4.7 软件升级操作
首先把升级软件拷贝到U盘根目录下,将U盘插入USB接口,进入“系统配置”—“系统参数”—“系统信息”界面,按“升级软件”根据提示等待装置自动完成升级操作。
6.4.8 装置校准
出厂调试人员已对装置进行校准操作,用户无须操作。
6.4.9 文件上传或导出
文件根据FTP设置自动上传文件,也可手动上传文件或导出文件。
进入“系统配置”—“文件管理”界面,,选择文件,按“上传到FTP服务器”或“拷贝到USB设备”相应文件会上传或导出。
6.4.10 打印数据
进入“系统配置”—“打印数据”界面,可进行相应打印操作。
附表:装置定值清单
序号 | 名 称 | 取值范围 | 单位 |
1 | 运行电压(kV) | 0.01---500.00 | kV |
2 | 额定电压(kV) | 0.22---500.00 | kV |
3 | PT变比 | 1.00---5000.00 | -- |
4 | CT变比 | 1.00---5000.00 | -- |
5 | 电压上偏差越限值 | 1.00---100.00 | % |
6 | 电压下偏差越限值 | 1.00---100.00 | % |
7 | 电压偏差总越限值 | 1.00---100.00 | % |
8 | 电压总畸变率越限值 | 0.01---100.00 | % |
9 | 电流总畸变率越限值 | 0.01---100.00 | % |
10 | 奇次电压含有率越限值 | 0.01---100.00 | % |
11 | 偶次电压含有率越限值 | 0.01---100.00 | % |
12 | 奇次电流含有率越限值 | 0.01---100.00 | % |
13 | 偶次电流含有率越限值 | 0.01---100.00 | % |
14 | 2次电流越限值(一次) | 0.01---200.00 | A |
15 | 3次电流越限值(一次) | 0.01---200.00 | A |
16 | 4次电流越限值(一次) | 0.01---200.00 | A |
17 | 5次电流越限值(一次) | 0.01---200.00 | A |
18 | 6次电流越限值(一次) | 0.01---200.00 | A |
19 | 7次电流越限值(一次) | 0.01---200.00 | A |
20 | 8次电流越限值(一次) | 0.01---200.00 | A |
21 | 9次电流越限值(一次) | 0.01---200.00 | A |
22 | 10次电流越限值(一次) | 0.01---200.00 | A |
23 | 11次电流越限值(一次) | 0.01---200.00 | A |
24 | 12次电流越限值(一次) | 0.01---200.00 | A |
25 | 短时闪变越限值 | 0.50---100.0 | -- |
26 | 长时闪变越限值 | 0.50---100.0 | -- |
27 | 电压骤降启动定值 | 0---200.0 | % |
28 | 电压骤升启动定值 | 100.0---200.0 | % |
29 | 电压中断启动定值 | 0---200.0 | % |
30 | 低频启动定值 | 40.0---100.00 | Hz |
31 | 过频启动定值 | 50.0---100.00 | Hz |
32 | 电压不平衡启动定值 | 0.02---100.0 | % |
33 | 电流不平衡启动定值 | 0.02---100.0 | % |
34 | 冲击电流启动定值 | 0.5---100.00 | A |