时间:2023-07-24 10:25
人气:
作者:admin
本文中介绍的西门子PLC安装接线详解,包含PLC型号有:Smart200、S7-300,S7-1200,S7-1500等。
西门子200模块常用PLC接线图
CPU SR20+EMDR32

西门子S7-300常用模块接线图
CPU315+PS307(电源模块)+SM321(DI模块)+SM322(DO模块)


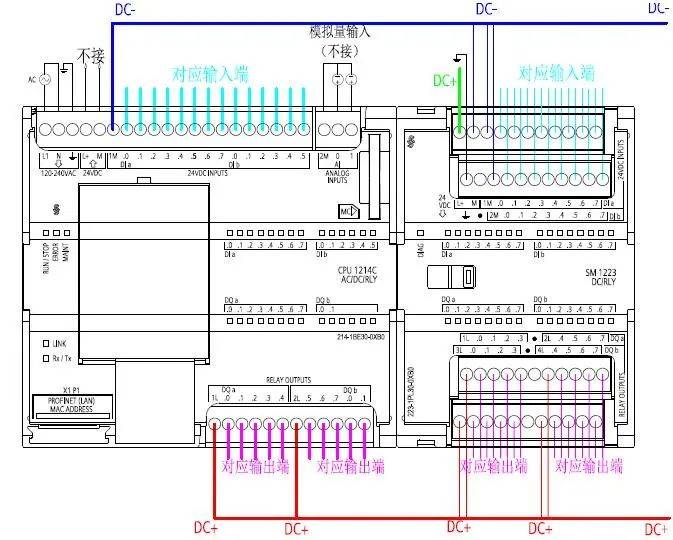
西门子S7-1200常用模块接线图
CPU1214C+SM1223

西门子1500常用模块接线图

以下详细介绍S71500硬件安装接线:
硬件要求
● 1 × CPU 1511-1 PN (6ES7511-1AK00-0AB0)
●1 个S7-1500 负载电流电源 PM 70W 120/230VAC (6EP1332-4BA00)
● 1 根安装导轨 (6ES7590-1AB60-0AA0)
● 1 个数字量输入模块 DI 16x24VDC SRC BA (6ES7521-1BH50-0AA0)
● 1 个数字量输出模块 DQ 16x24VDC/0.5A ST (6ES7522-1BH00-0AB0)
● 2 个前端连接器 (6ES7592-1AM00-0XB0)
● 1 个 4 MB 的 SIMATIC 存储卡(如 6ES7954-8LBxx-0AA0)
● 1 根以太网电缆
软件要求
● SIMATIC STEP 7 Professional V13及以上
● SIMATIC WinCC Advanced V13 或 SIMATIC WinCC Professional V13及以上
安装组合件步骤
1. 在安装导轨上安装负载电流电源 (PM)。

2. 打开前盖并拔出电源连接插头。

3. 拔出 4 孔连接插头并拧紧负载电流电源 (PM)。

4. 将 U 型连接器插入 CPU 后部。

5. 在安装导轨上安装 CPU 并将其拧紧。

6. 将 U 型连接器插入数字量输入模块后部。

7. 将数字量输入模块连接到安装导轨并将其拧紧。

8. 将数字量输出模块连接到安装导轨并将其拧紧。

CPU 的接线规则

对电源连接插头接线步骤
1.使用适用工具拔出连接器外盖。

2.根据接线图将电源线连接到插头上。在插头的另一侧,标有该插头认证后可使用的电压信息。 根据插头背面的信息,通过插入编码元件选择相应电压。

3.合上外盖。

4.拧紧电源连接插头上的螺钉。

将负载电流电源 (PM) 接线到 CPU步骤
1.对负载电流电源(PM) 的 4 孔连接器插头接线。

2.将4 孔连接器插头接线到 CPU 的 4 孔电源连接插头。

对数字量输入模块接线步骤
1.将前端连接器插入预接线位置。在预接线处,前连接器与模块间未进行电气连接。

2.用电缆扎带固定电缆。

3.将负载电压24 V DC 连接到端子 20 (M) 和 19 (L+)。

4.在两个底部端子之间插入电位电路桥。

对数字量输出模块接线步骤
1.将前端连接器插入预接线位置。

2.通过数字量输入模块上的端子40 (M) 和 39 (L+),从数字量输入模块为的端子 20 (M)和 19 (L+) 提供 DC 24 V 供电电压。

3.连接四个电位电路桥。

4. 连接端子 30 和 40,以及 29 和 39。

为前连接器接线步骤
1. 根据端子前盖内侧的接线图,连接各个导线并将其拧紧。

2.为了消除张力,请使用电缆扎带固定电缆并拉紧。

3. 将前端连接器从预接线位置移到其最终位置。 至此,已建立了前连接器和模块间的电气连接。

4. 提示: 可以直接插入预接线的前端连接器,例如,用于更换模块。

通电首次启动 CPU步骤
1. 插入负载电流电源 (PM) 的电源连接插头。

2. 将电源连接插头连接到电源。

3.将空的 SIMATIC 内存卡插入 CPU 中

4. 将负载电源 (PM) 上的开关切换到位置 RUN 处。 将启动 CPU。

CPU 启动并处于 STOP 模式。通过显示屏分配 IP 地址在这一步中,将设置 CPU 的 IP 地址和子网掩码。
步骤:
1. 浏览到“设置”(Settings)。
2. 选择“地址”(Addresses)。
3. 选择接口“X1 (IE/PN)”。
4. 选择菜单项“IP 地址”(IP Addresses)。
5. 设置 IP 地址 192.168.0.10。
6. 按下模块上的“右”箭头键。
7. 设置子网掩码 255.255.255.0。
8. 按下模块上的“下”箭头键选择菜单项“应用”(Apply),然后单击“确定”(OK) 确认设置。
西门子PLC无线通讯
