时间:2017-07-28 10:16
人气:
作者:admin
接地装置是指埋设在地下的接地电极与由该接地电极到设备之间的连接导线的总称。接地装置也称接地一体化装置:把电气设备或其他物件和地之间构成电气连接的设备。
与大地直接接触实现电气连接的金属物体为接地极。它可以是人工接地极,也可以是自然接地极。对此接地极可赋以某种电气功能,例如用以作系统接地、保护接地或信号接地。

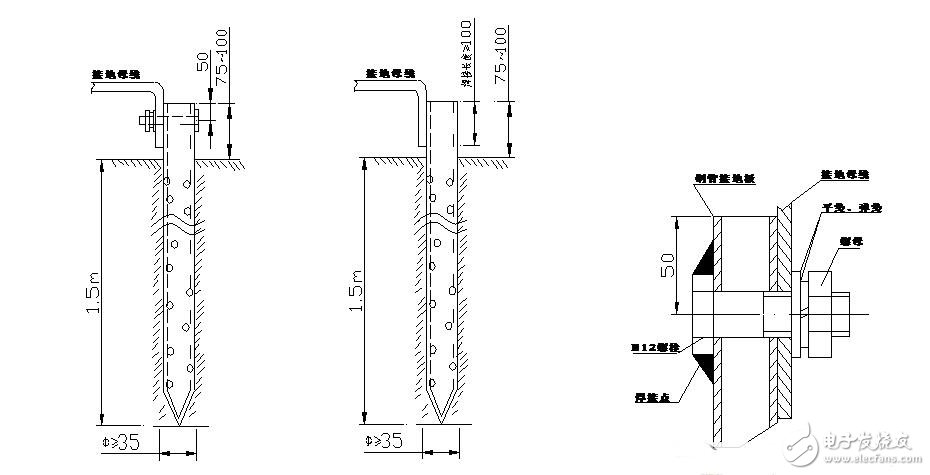
接地装置是由埋入土中的接地体(圆钢、角钢、扁钢、钢管等)和连接用的接地线构成。一、按接地的目的,电气设备的接地可分为:工作接地、防雷接地、保护接地、仪控接地。
1、工作接地:是为了保证电力系统正常运行所需要的接地。例如中性点直接接地系统中的变压器中性点接地,其作用是稳定电网对地电位,从而可使对地绝缘降低。
2、防雷接地:是针对防雷保护的需要而设置的接地。例如避雷针(线)(现称接闪杆、线、带)、避雷器的接地,目的是使雷电流顺利导入大地,以利于降低雷过电压,故又称过电压保护接地。
3、保护接地:也称安全接地,是为了人身安全而设置的接地,即电气设备外壳(包括电缆皮)必须接地,以防外壳带电危及人身安全。
4、仪控接地:发电厂的热力控制系统、数据采集系统、计算机监控系统、晶体管或微机型继电保护系统和远动通信系统等,为了稳定电位、防止干扰而设置的接地。也称为电子系统接地。
接地电阻的基本概念:接地电阻是指电流经过接地体进入大地并向周围扩散时所遇到的电阻。大地具有一定的电阻率,如果有电流流过时,则大地各处就具有不同的电位。电流经接地体注入大地后,它以电流场的形式向四处扩散,离接地点愈远,半球形的散流面积愈大,地中的电流密度就愈小,因此可认为在较远处(15~20m以外),单位扩散距离的电阻及地中电流密度已接近零,该处电位已为零电位。图中曲线U=f(r)即表示地表面的电位分布情况(r表示离雷电流注入点的距离)。
接地点处的电位Um与接地电流I的比值定义为该点的接地电阻R,R=Um/I。当接地电流为定值时,接地电阻愈小,则电位Um愈低,反之则愈高。接地电阻主要取决于接地装置的结构、尺寸、埋入地下的深度及当地的土壤电阻率。因金属接地体的电阻率远小于土壤电阻率,故接地体本身的电阻在接地电阻中可以忽略不计。
正常情况下不带电,事故下(包括雷击)可能带电的设备外壳均需要接地。原则上所有的用电电器,所有与电气相关联的金属架构均应保接地。

接地电阻当然是越小越好,根据设备的不同要求,标准为4--10欧姆,最高不能大于10欧姆,4欧姆以下更好,可是一般很难做到。特殊场地要求,如:一般有110千伏电压级的水电站接地的电阻值为0.5欧姆。

接地线是统称,在具体的接地线路上,又有接地线、接地干线和接地支线之分。接地线也是接地干线和接地支线的总称;如果只有接地装置而没有接地支线,则接地线是指接地体与设备接地点之间的连接线。
根据接地装置按接地体数量的多少,可分为以下三种形式。
(1)单极接地装置。单极接地装置由一个接地体与接地线组成的接地装置。接地线一端与接地体相连,另一端与电气设备的接地点相连。它适用于对接地要求不太高和电气设备接地点较少的场合。
(2)多极接地装置。多极接地装置由两个或两个以上接地体与接地线组成,各接地体之间用接地干线连成一体。接地干线与电气设备的接地点由接地支线相连。多极接地可靠性大,接地电阻小,适用于对接地要求较高、电气设备接地点较多的场合。
(3)接地网络。接地网络将多个接地体用接地干线连接成网络,具有接地可靠、接地电阻小的特点,适合大量电气设备接地的需要,多用于配电站、大型车间等场所。

建筑物的防雷接地装置是由接闪器、引下线、接地体三大部分构成。
接地体大致分为人工接地体和利用深基础做接地体两种。
(1)人工接地体:因房屋屋面大小不同而设置一至几组接地体,每组一至几根镀锌角钢∠50×50×5长2.5米,间隔3米打入潮湿的地下土里,顶部低于自然地面0.7米,以镀锌扁钢40×4焊连,覆盖回填土,并以镀锌元钢引出地上连接测试卡盒,上接引下线。
(2)利用深基础做接地体:高层建筑,利用柱子钢筋做引下线,应不少于两根钢筋,与桩的纵向钢筋或筏板的钢筋相焊接,桩与桩间的地梁钢筋也必须焊连。凡焊连处,不少于两根Φ12,焊缝长不少于8d。