时间:2023-04-29 17:11
人气:
作者:admin
本文介绍了高低音增强扬声器盒系统的构造,该系统可用于再现具有重低音效果的音乐,可以用电位器进行调整。
市场上大多数经济实惠的高保真系统都有不错的中音和高音反馈,但在遇到一些深沉的低音时表现不佳。这主要是由于扬声器容量和放大器输出不足以驱动低音。
这是一种解决方法,可以在极高的水平上产生混响低音。
与其他高音频相比,低音是非定向的,因此不需要特定的扬声器位置。
这篇文章中的低音增强扬声器系统描述了如何在不影响立体声输出或音质的情况下构建这样的电路。
概念
这个概念很简单;增强器合并来自左右立体声通道的低音信号并放大它们。
然后,它通过标准低音扬声器再现声音。因此,有很多方法可以利用该系统。
最简单的设计是将图1所示的低通滤波器连接到额定功率为40W或更高的额外单声道或立体声放大器。然后使用具有良好低音响应的扬声器外壳播放该放大器。


另一种选择是使用独立的扬声器系统实现上述低通配置,该系统专为低音再现而设计,如本文所述。
由于备用放大器可能很麻烦,因此设计了一个简单的内置放大器,如本项目中使用的放大器。
建设
在最温和的形式中,升压器与单独的放大器一起使用。如果是这样,过滤器必须在一小块穿孔板或标签条上制成。
整个装置应组装在新的低音扬声器外壳内(与我们的原型装置一样)或任何其他可用的地方。
这种一体式单元可以轻松制造,因为大多数组件直接固定在PCB上,如图4所示。


图#5
主功率变压器、输出晶体管和稳压电位器安装在外部。
然后,根据PCB布局图和原理图上的编号建立与组件的连接。
在焊接之前,必须确保所有电子元件都根据其正确的极性放置。
晶体管 Q6 和 Q7 通过绝缘垫圈固定在散热器上,并连接到引脚 1、2、3、4 和 5。连接点如图 2 和图 5 所示。
如果放大器将放置在扬声器外壳内,则必须将电源变压器安装在橡胶上。
建议使用屏蔽电缆连接到输入和音量控制。
如何测试
确定所有电子元件都在正确的位置后,将雨刮器RV2设置在其行程中间。确保此时不要连接扬声器。
之后,打开 240 V 主电源并测量扬声器端子上的电压。该值应低于0.2 V,如果更高,请关闭电源并彻底检查所有连接。
如果您没有万用表,请将一根扬声器线连接到放大器输出的一侧,然后将第二根线短暂接触另一输出点。
在良好的连接下,扬声器不会产生任何声音或只是微弱的“咔嗒”声。如果扬声器锥体立即跳开,请关闭电源并再次检查连接。
如果扬声器静音并且一切正常,请使用毫安表(如果有)测量与其中一根扬声器线串联的电流。
微调电位计RV2,直到电流表上的读数显示40 mA。如果没有毫安表,只需让RV2处于中间位置即可。
接下来,将当前扬声器的引线连接到滤波器输入,并将低音扬声器连接到增强放大器。
您可以打开电源并检查整个系统。请记住,如果从独立的音频源使用低音增强器电路的声音可能会有点失真。
但是,如果将电路的输入与现成立体声系统的现有左/右扬声器的端子连接,那么它可能会产生令人难以置信的好声音和巨大的低音水平。
电路说明
低音增强音箱系统的完整电路原理图如下图所示

《《图#2 独立的高低音,低音炮扬声器系统(晶体管/二极管不是关键,可以使用任何标准的等效物。)》》
电阻R1至R4组合了当前立体声放大器每个通道的输出。
然后,电阻R5、R6和RV1以及电容C1、C2和C3创建一个截止频率约为200Hz的低通滤波器。此外,它还具有每倍频程斜率 18 dB。
为了保护扬声器免受开关导通尖峰和瞬变的影响,电容C4用作大约30 Hz的高通滤波器。
图1显示,用于不同放大器的滤波器在输出电位计之前连接了一个20 dB衰减器。这样可以防止后续放大器过载。
此外,它还输出约 25 W 的 4 欧姆功率和 0 Hz 至 50 kHz 左右的频率响应。
但是,当添加输入滤波器时,放大器的频率响应变得与滤波器的频率响应相同。图3显示了滤波器响应的曲线。

放大器电路的主电压增益由IC1、Q2和Q3提供。
晶体管Q4和Q5提供触发输出晶体管Q6和Q7所需的电流增益。
Q1稳定Q2和Q3,D1平衡晶体管Q4。然后,二极管D3和D4补偿晶体管Q5和Q7。
齐纳二极管ZD1和ZD2通过限制IC的输出电压摆幅来保护晶体管Q2和Q3。
可以在不集成滤波器的情况下使用本任务中讨论的放大器。
这意味着电子元件将充当直接的40 W单声道放大器。如果是这种情况,其中一个二极管D2或D3或两者必须重新定位在散热器上。
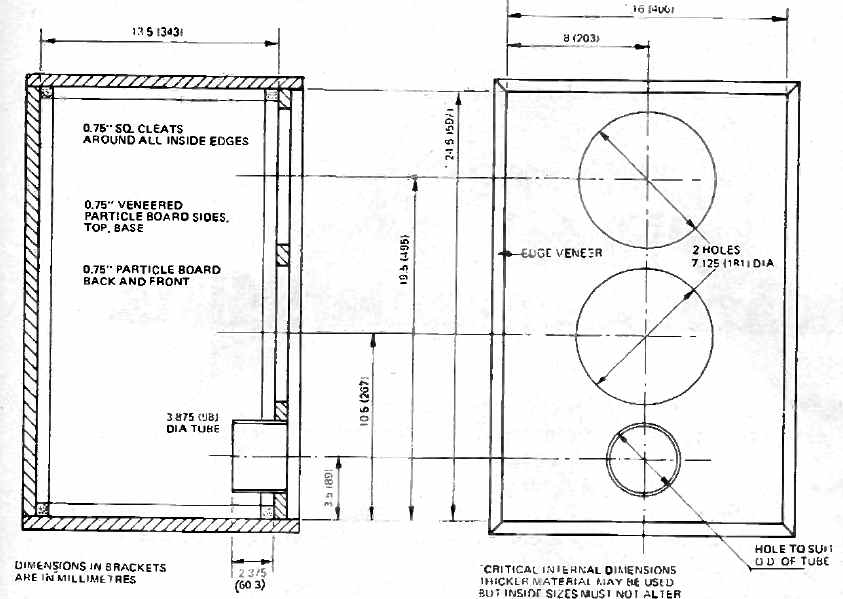
低音增强扬声器外壳
评估用于此扬声器系统的情况如下图 6 和图 7 所示。

图#6

图#7
低音增强器电路的选定扬声器是并联连接的 2 nos 8 欧姆 Magnavox 20 W 型。因此,扬声器的阻抗仅为 4 欧姆。
扬声器外壳的内部覆盖着吸收性材料,如泡沫,在侧面、顶部和背面。
扬声器接线图

零件清单
电阻器:

电容器:

半导体及其他

下一篇:分享一个触摸音量控制电路