时间:2021-05-01 15:55
人气:
作者:admin
试问一下, 从几十元的小塑料盒子(对劣质音箱的戏称)到上千元的高档音箱,这些产品中是否有和你意的呢?也许你是一个音响发烧友,连高档的家庭影院都可以DIY,对所谓高档的多媒体音箱不屑一顾。或者也许你是一个很挑剔的人,对买来音箱的元器件和箱体材料感到不值,如果你自己组装的话,在同等价位上你可以用到更好的元器件和箱体材料。或者也许你是一个无线电爱好者,对买来音箱指标参数的不够真实感到不满的话。
那么,相信你自己吧!多媒体音箱一样可以DIY。
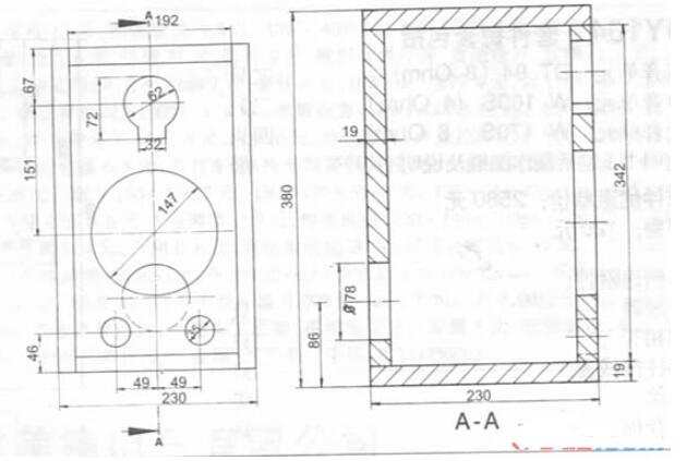
A.箱体的制作
首先你要考虑制作一个箱体,当然如果你愿意的话,市场上还有许多的现成的箱体可以购买,不过那就失去了DIY的乐趣。
1.材料的选用
如果你想选用工程塑料或纤维板制作箱体的话,那我建议你最好去买一个现成的,原因有二。首先个人制作箱体的难度较大,另外此种箱体的价格很便宜,没有做的必要。
我个人推荐木制的箱体,因为这样一来可以借鉴音响发烧友的经验,二来个人制作箱体的目的也容易实现。

箱体的设计在很多的网站和杂志上都有图纸,我觉得直接拿来使用比较好,下图只是一个例子(98VISATON DIY大奖赛获奖作品,摘自《无线电》杂志)。
木制音箱材料的选择一般有高密度板和中密度板,高级原木和高强度多层板,我推荐使用高密度板,我认为这是最实惠的选择,又不容易引起箱体的谐振和高音量时高低频率的失真,另外对箱体的制作和加工也更适合个人和家庭。如果因为成本的原因必须选用中密度板,也要尽量选择质量重一些,厚度厚一些的。
除了木制的箱体以外还有人用水泥或云石和有机玻璃等材料制作箱体,但是云石密度低,谐震高,任何器材放上去音质都 会大打扣,玻璃密度比云石高,但如果不够厚,所引起的谐震更严重,一定要用玻璃则厚度至少需要2.5CM。其实采用这样的箱体材料我认为不但加大了成本和加工的难度,而且也要分音乐的类型才能够将箱体的优势完全的表现出来,失去了个人制作音箱的意义。
2.加工
木制箱体的加工相对简单,但是要注意以下两点,一是箱体加工尺寸精度要高;二是箱体材料选择要准确。
在音箱箱体的加工中,主要有如下的几种方法:
1.折弯法。此方法是在计算好的,剪裁好的,贴有PVC面料的长条中密度板上开V形槽或燕尾槽,然后弯折、胶合而成的音箱箱体。大批量的音箱生产多采用此法。
2.镶条加固法。在自制音箱中,根据图纸将板料切好,然后在板料的接口处,加上涂胶的木条进行加固结合。这种方法适合手工制作音箱。
3.拼装法。在音箱板的四周,用精密加工机械开有45°+90°的斜面和缺口。在手工制作的音箱箱体时,可以通过音箱板材的90°缺口和45°的斜面拼装,只要在接口处涂上足够的胶,拼装后用绳子扎牢,待胶干后,即可得到加工精度高、坚固美观的音箱箱体。
3.成型
待音箱箱体完成后,只要对箱体表面进行打平,喷漆,贴面等装饰处理,就大功告成了。但在帖面时要注意先粘牢固一边,再将其余的贴面延箱体往外擀,一方面注意不要有气泡,另一方面也要注意贴面的边缘尽量和箱体边缘平行(防止贴歪)。
4.面罩的制作
面罩制作是否合理对声音也有一定的影响,不合式的面罩会在声音播放的时候产生共振,造成对音质的影响。面罩太过紧贴扬声器的表面也会造成不良的影响。
B.分频器DIY
1.元器件的选用
(1) 电阻
电阻按工作特性、结构、用途大致可分为固定电阻器、可变电阻器、半可变电阻器与特殊用途电阻器等四种。
我在这里着重介绍一下固定电阻:
“固定电阻器”大致可分为︰
金属类 - 线绕电阻器、金属披膜电阻器
线绕电阻是以很细的金属导线绕在圆形或扁形的绝缘体上,绝缘体通常为白瓷管,再以合成树脂、珐琅等材料将绝缘体密封。线绕电阻分为功率型、低功率型以及精密型等三类,最主要的用途为降压电阻或分压线路中的电阻,或者是电源泄放用电阻。
金属披膜电阻在特性上比线绕电阻好,尤其是在高频部分的运用上,虽然金属披膜电阻不像线绕电阻一样能忍受大功率,但是因为它的体积小,阻值可制作得很大,因此常运用于小体积的精密电器产品上,如计算器、电游等。
碳素类 - 碳膜电阻器、碳膜固态电阻器
碳膜电阻的最大特点是价格便宜,而且稳定度高,所以运用广泛。但其最大的缺点为耐湿性较差,因为碳遇到湿气即会氧化,若其氧化后再加上负载,则电阻会因湿度的升高而发生断路,因此必须以铸壳或陶瓷外壳加以保护。
碳素固态电阻是将碳素压成棒装的固体,再加上绝缘体与引线而成。
半导体类 - 光敏电阻、热敏电阻、气敏电阻、变阻器
(2) 电容
电容是分频器中很重要的一部分,通常使用的有通心电容,电解电容,涤纶,聚苯,聚丙电容,和钽电容等。
(3) 电感
分频器所使用的电感线圈一般分为空芯线圈和铁芯线圈两大类;而铁芯线圈又分为真铁芯和铁氧体芯两类。
传统的分频器由电容电感以及高音衰减电阻R等元器件组成。如图L1、C1组成低通滤波器作用是只保留音频信号中的低频部分去驱动低音扬声器单元。L2、C2组成高通滤波器作用是只保留音频信号中的高频部分去驱动高音单元。
图例

2.计算
公式……L=R/6.28xf,式中R等于分频点上喇叭阻抗值,f等分频频率。
假如分频点选3000Hz:实测中低频喇叭阻抗为8Ω
L=8Ω/6.28X3000hz=0.43毫亨
电容C=1/6.28×f×R
C=1/6.28×3000×8=1/150720=1÷150720=6.6µf
3. 板基的制作
板基可以用油漆笔或别的工具在敷铜板上画出电路图,最后用三氯化铁将没有涂油漆的部分腐蚀掉,就可以用了。当然,你也可以到音响城去买现成的功放套板。
4.元件的焊接
这一步最好有有经验的人来帮着你做,这里要注意以下的几点:
1最好选择体积小功率大的烙铁,烙铁头越尖越好。
2尽量使用好的焊锡丝
3不要反复的焊一个焊点
4 焊错的地方最好用专用的吸锡器来完成清理焊锡的工作。
C扬声器单元的选用
在高音单元中,由于锥盆式高音单元振膜面积过大、过重,高频特性不如其它类型的高音单元,所以现在基本已被淘汰。
球顶式高音单元由于自身的优点,目前已经成为了音箱中普遍采用的高音单元。球顶高音从球顶结构上分, 可分为正球顶单元和反球顶单元。从球顶材料上分,又可分为硬球顶和软球顶两大类。正球顶单元在播放音乐时水平扩散角度大,反球顶高音单元虽然水平幅射角较小,但音色纯,承受功率也大。
硬球顶高音的振膜材料大致可分为铝合金、钛合金、钛合金复合膜、玻璃膜、钻石膜等。播放高音时,音色明亮,金属感强。适合播放流行音乐、摇滚乐等。
软球顶高音的振膜材料大致可分为绢膜、蚕丝膜、橡胶膜和防弹布膜等。适合于表现古典音乐,民乐等。
在中音单元中有锥盆和球顶之分,一般采用的多是锥盆式。
低音单元的振膜材料大致可分为 铝合金振膜、铝镁合金振膜、陶瓷振膜、碳纤维振膜、防弹布振膜、玻璃纤维振膜、丙烯振膜、纸振膜等等。
以上是一些对于扬声器的介绍,除此以外,由于是多媒体音箱,所以一定要选择防磁性能好的扬声器。 D功率放大器的使用
功放的工作原理其实很简单,就是将音源播放的各种声音信号进行放大以推动音箱发出声音。
1自制功放还是购买
目前市场上的功放单元货色齐全,价格也并不贵,鉴于自做功放的难度和质量,我觉得还是买现成的比较好,可供选择的类型也比较广。
总之无论是自制还是购买音箱,都要考虑功率、阻抗、失真、动态以及不同的使用范围和控制调节功能。
2外置还是内置
由于内置电源和功放会增大箱体内的发热量和电磁干扰。而且内置的功放也会受到体积的限制和箱体内电磁干扰的影响。所以如果你的要求比较高就应该使用外置的功放。
E煲机
通过煲机可以使器材(线材)从全新进入最佳状态。
煲机需注意以下几点:
1使用的讯号碟最重要的是频率要够齐全。
2 煲出音乐感应尽量使用频宽兼顾较全面的音乐碟。
责任编辑:YYX