时间:2018-05-22 13:29
人气:
作者:admin
特高压直流换流站每极采用2个12脉动换流器的接线方案,每一个换流器都可以独立运行或与其它换流器进行组合运行,直流系统这种灵活的接线特点有利于换流站施工建设期间实现分期投运,尽早发挥直流输电工程的输电效益。
根据直流换流站可以模块化建设投运的规律和以往工程经验,从工程施工到全站设备完全投运可以划分为六个阶段:
阶段1:交流系统带电;阶段2:直流单极低端换流器带电;阶段3:直流双极低端换流器带电;阶段4:直流单极高端换流器带电;阶段5:直流双极高端换流器带电;阶段6:直流场全部带电。
上述六个阶段的划分实现了根据工程进度的不同实行分阶段送电,由于在各个阶段过渡期间设备带电运行与工程施工调试同步进行,现场带电运行设备、安装调试设备同时存在,因此存在较高的安全风险。为了保证投运设备正常运行及后续施工的安全需要,在不同阶段需要制定并执行一次系统设备带电隔离、二次系统接线隔离、控制保护系统软件隔离等安全隔离措施,以防止在此期间造成各种不必要的安全生产事故。
随着直流场设备和各个阀组单元完成安装调试,在交流系统带电安全隔离措施的基础上,需要对原有的安全隔离方案进行调整,以保证阀组单元的顺利接入。本文结合锦苏直流工程苏州换流站对有代表性的交流系统带电阶段和极1单极低端换流器带电阶段的安全隔离措施进行了详细的研究。
交流场带电安全隔离的目的是实现换流站交流场带电运行后,直流场设备的施工和控制保护的调试不会对交流场带电设备造成影响,使设备带电运行与工程施工调试同步进行。
1.1一次设备带电范围
(1)500kV交流场;(2)500kV交流滤波器场;(3)500kV及高压站用变;(4)35kV站用变;(5)10kV开关室;(6)公用400V站用电室。
1.2一次设备安全隔离措施
断开500kV交流场到极1高端、极2低端、极2高端、极2低端换流变压器的引线,换流变进线CVT属于带电范围,换流变引线的接引位置如图1和图2所示,所断开的引线需要绑扎牢靠,并做好换流变引线的接地措施。
图1换流变进线解引位置示意图(解引前)
图2换流变进线解引位置示意图(解引后)
1.3二次设备带电范围
(1)交流场继电器小室
交流场测控屏、交流线路保护屏、断路器保护屏、母线保护屏、交流故障录波屏、保护及故障录波子站数据采集屏、交流线路故障测距屏、GPS时钟扩展屏、电度表屏、PMU相角监测屏、安控从控屏、光纤通讯接口屏、辅助系统接口屏。
(2)交流滤波器场继电器小室
交流滤波器测控屏、滤波器保护屏、滤波器操作箱屏、光CT接口屏、光纤通讯接口屏、GPS时钟扩展屏。
(3)站用电小室
站用电保护屏、辅助系统接口屏、GPS时钟扩展屏、站用电测控屏、光纤通讯接口屏、辅助系统接口屏。
(4)主控室
运行人员工作站、工程师工作站、通讯接口屏、辅助系统测控屏、规约转换屏、服务器系统屏、远动工作站屏、光纤通讯接口屏。
1.4二次设备安全隔离措施
由于在交流场带电阶段直流控制保护系统尚处于调试过程,为了防止直流控制保护系统引起带电设备的误动作,故需要从二次接线上断开交、直流系统间的所有测量、联锁、控制回路。
1.4.1直流阀组控制系统(CCP)与交流控制系统(ACC)间的联锁回路
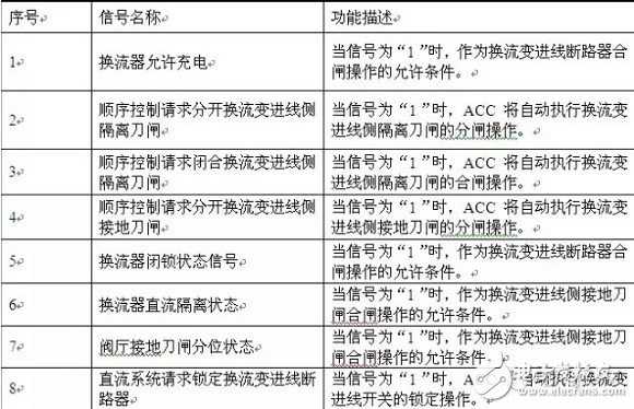
根据设计原理,四个阀组控制主机分别与相应的交流进线间隔的交流控制主机存在一些联锁信号,主要用于换流变进线开关和隔刀遥控操作的允许条件[5],以及CCP请求ACC执行的顺序控制操作,信号名称及功能具体见表1:
表1交、直流系统间的联锁信号

在换流变进线间隔的测控屏中,将表1信号的端子外部电缆拆除,并对裸露的线头做好绝缘防护措施;为了满足在交流带电操作过程中,ACC对换流变进线开关,进线侧隔离刀闸、接地刀闸进行遥控操作,需要对表中第1、5、6、7项联锁信号的端子外侧与屏内直流电源进行短接,始终保持高电平输入,满足开关、刀闸能够正常操作的联锁条件。
风险点评估:此部分安全隔离措施如不完全实施,将会造成调试直流控制系统期间,直流控制经交流控制系统出口,引起已投运的交流场开关设备误动。
1.4.2直流控制保护系统中交流进线开关跳闸、启动失灵回路
直流控制保护系统在调试期间,会涉及到保护出口跳闸以及紧急停运按钮测试,为了防止已经带电的交流场设备误动作,因此直流系统跳交流进线开关和启动失灵的出口回路可在对应的断路器保护屏上断开相应电缆接线,并对裸露线头做好绝缘防护。
风险点评估:此部分安全隔离措施如不完全实施,将会造成调试直流控制和保护期间,跳闸命令经断路器保护屏的操作箱出口,引起已投运的交流场开关设备误动。
1.4.3交流场接入直流控制保护系统的CT回路
在直流工程中,换流变压器保护一般归为直流保护系统范围,交流场换流变出线CT会接入换流变保护测量单元,用于过流和差动保护。
极1高端、极1低端、极2高端、极2低端交流进线电流回路需在交流系统带电前在就地汇控箱内短接退出,具体做法为至CT侧的电流短接接地,打开电流端子连接片,从而实现电流回路的隔离。
风险点评估:此部分安全隔离措施如不完全实施,可能会造成调试直流保护期间,CT注流时引起交流场CT开路。
1.4.4交流场接入直流控制保护系统的PT回路
根据直流控制保护的设计原理,500kV交流母线电压互感器要接入双极控制系统,主要用于无功控制功能;极1高端、极1低端、极2高端、极2低端交流进线电压分别接入相应阀组控制系统,用作同步电压和换流变带电逻辑判断。在交流系统带电前,上述电压回路需在各自就地端子箱内将电压空开断开,同时解开空开下端头的接线,开口三角回路将L线解开,解开的线头做好绝缘保护,以确保在交流区域启动时二次电压不进入直流控制保护装置。
1.4.5双极控制保护屏(BCP)至交流滤波器控制屏(AFC)的无功控制回路
直流系统在正常投运后,双极控制系统通过CAN总线与交流滤波器控制主机进行数据交换,根据不同的无功控制策略,通过对交流滤波器小组的投入、退出操作,完成无功控制功能,以滤除进入交流系统的特征谐波,并为直流系统提供无功功率。其隔离措施为:在AFC屏内拔出相应的光纤,断开用于无功控制的CAN总线,以屏蔽双极控制系统的命令[6-7]。
风险点评估:此部分安全隔离措施如不完全实施,可能会造成调试直流无功控制功能期间,对已属于带电范围的交流滤波器设备进行误操作。
1.4.6短引线的保护方案
交流场带电时短引线的处理方案通常有三种,第一种是交流场保护极性校核完成,带电24小时后,与短引线直接相连的断路器置于“冷备用”状态,这种方案不适用于需带电的短引线;第二种是设置短引线保护,将短引线两侧的CT接入短引线保护屏;第三种是将中开关电流引入母线差动保护,将边开关作为死开关,作为母线的一部分,用母线保护保护短引线。
采用母线保护保护短引线,在应用中需注意以下问题:
(1)该种临时方式运行安全风险高。该方式下高端换流变对应引接设备(大量户外架空高跨线、GIS分支母线、CVT设备、支柱绝缘子)一旦出现故障或异常状态,会引母线差动保护动作,扩大了停电范围,长期非正常方式对系统安全运行不利;
(2)该种临时方式易存运行隐患。现场五防闭锁逻辑通常按照正常状态方式,并已经过验证确认。而在该临时方式下,需修改母线地刀与串内刀闸的闭锁逻辑,交流场带电前需将该临时逻辑写入交流控制主机,短引线接至设备运行时,又需将正常逻辑重新写交流控制主机;但此时交流场已正式运行,修改后的五防闭锁逻辑很难申请交流全停进行逻辑验证,为后续安全运行留下隐患;
(3)该种临时方式造成现场大量增加了额外的安装调试工作量。如按照该种方式进行现场修改,交流带电投运前现场需进行大量控制电缆敷设安装工作,其中包括从GIS室至继电器小室电流回路电缆,母差保护与断路器保护柜间大量跳闸、失灵保护相互启动、同期电压改接线等二次回路电缆敷设安装,还要退出现有已经过验证的二次回路电缆;短引线接至设备运行前,又需将上述过渡电缆拆除,改回永久电缆,并进行大量保护及二次回路改接及调试工作,给现场工作造成了极大的困难和安全隐患;
因此,交流系统带电前应根据实际情况,采取合适的短引线保护策略。
1.5辅助系统要求
为了确保换流站现场人员的人身安全以及一、二次设备的安全运行和监控,交流系统带电阶段需要确保以下辅助系统已经投入运行,并且工作正常。
(1)站用直流电源系统;(2)消防系统;(3)火灾报警系统;(4)图像监视;(5)空调系统;(6)呼叫系统。
极1低端带电安全隔离的目的是实现换流站极1低端的带电运行和功率输送,同时确保其它直流场设备的施工和控制保护的调试不会对极1低端的正常生产运行造成影响。
2.1一次设备带电范围
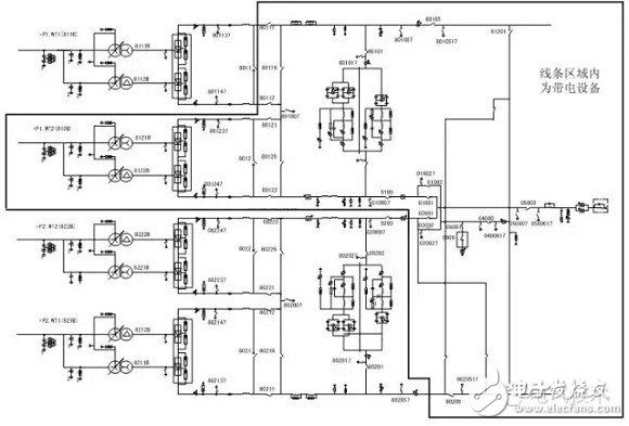
极1低端带电范围如图3所示,在交流系统带电的基础上还需增加一下带电范围:(1)极1低端换流变;(2)极1低端换流阀及极1低端阀厅设备;(3)极1低端阀冷系统;(4)极1直流场开关设备,包括极1直流滤波器设备;(5)双极开关场设备。
极1低端带电后,换流站可以开展极1低端阀组的空载升压、功率输送、金属/大地回线转换等一系列系统试验,试验成功完成后便可提前投入运行,具备一定的直流功率输送能力;从而达到设备的分期投运,进一步缓解直流线路受端地区的电力紧张局面。
2.2一次设备安全隔离措施
在交流带电安全隔离措施的基础上,恢复500kV交流场到极1低端换流变压器的引线。
根据图1所示,将80111隔刀、80112隔刀操作至“分闸”状态,同时将控制位置打到“就地”,并拆除其一次连杆,完成带电区域与极1高端阀组的电气隔离;将02001隔刀、02002隔刀、80205隔刀操作至“分闸”状态,同时将控制位置打到“就地”,并拆除其一次连杆,完成带电区域与极2的电气隔离。
风险点评估:此部分安全隔离措施如不完全实施,可能会造成调试极1高端阀组或极2高、低端阀组期间,误将上述设备接入直流场带电区域。
图3极1低端设备带电范围示意图

2.3二次设备带电范围
为了满足极1低端阀组的带电和功率输送,需要在原有投运屏柜的基础上,增加双极控制保护屏、双极测量接口屏、双极开关接口屏、极1控制保护屏、极1测量接口屏、极1开关接口屏、极1低端阀组控制保护屏、极1低端阀组测量接口屏、极1低端阀组开关接口屏、极1低端阀控屏、直流线路故障定位屏、接地极线阻抗监视屏。
2.4二次设备安全隔离措施
2.4.1恢复与交流控制系统间二次接线
在交流系统安全隔离措施的基础上,恢复与交流系统的二次接线,具体包括:(1)根据表1内容,恢复极1高端阀组控制主机与相应交流控制主机间的联锁信号,确保交流开关、刀闸的操作受控于直流系统的实际工况。(2)恢复极1高端阀组控制保护系统对交流进线开关的跳闸和启动失灵回路,确保当检测到直流系统发生故障时能够成功跳开交流开关。(3)恢复交流场到极1高端阀组的进线电流CT接线,确保换流变差动和过流保护能够正确出口。(4)恢复交流场到极1高端阀组的进线电压PT接线,使阀组控制系统能够采集到同步电压信号。(5)恢复交流场到双极控制系统的母线电压PT接线,使直流系统能够完成无功控制。
风险点评估:此部分安全隔离措施如不完全实施,可能会造成保护跳闸无法出口、不能正常解锁、解锁后无功控制误投入所有热备用的滤波器小组等风险;因此需要着重注意。
2.4.2与其它直流控制保护设备的安全隔离
(1)后备跳闸回路
为了防止直流功率输送期间控制主机故障后,控制命令无法下发,不能有效控制系统运行,故配置了后备跳闸功能;当极层控制主机全部故障时,会通过外部继电器发出信号到本极的高、低端阀组开关接口屏柜内的跳闸继电器,然后出口跳开交流进线开关;当阀组层控制主机全部故障时,阀组开关接口屏内的跳闸继电器会直接出口。
由于极1低端带电时期,极1高端、极2高端、极2低端直流控制保护系统尚处于调试阶段,故需要从二次接线上断开极1控制保护屏到极1高端控制保护屏的后备跳闸回路;以防止正常运行的极1控制保护屏启动后备跳闸时,与调试中的极1高端控制保护屏相互影响[8-9]。
(2)阀组检修开关
在主控楼控制室内,将极1高端阀组检修开关操作至“检修”状态,将极1低端阀组检修开关操作至“运行”状态。
在特高压工程中通常设置了阀组检修开关功能,高、低端阀组检修开关通过硬接点输出两个开关量信号分别接入本极的极层控制主机,若同一极的其中一个换流器需要进行检修或调试工作,为了不影响另外一个换流器的运行,投入检修开关将会在极层控制主机中屏蔽对检修阀组的状态监控,对检修阀组上传的模拟量测量值置零(避免注流等工作使保护误动),同时将检修阀组相应的开关量置为正常的状态,以免开关状态信号丢失引起保护和控制条件误判。
(3)软件置数
特高压工程中双极层控制保护主机与极层控制保护主机之间,极层控制保护主机与本极的阀组层控制保护主机之间有总线通讯,用于系统间的数据交换。为了防止极1高端、极2高端、极2低端控制保护系统的调试对极1低端带电的影响,调试系统与运行系统间的总线故障会触发运行系统的三级故障,故需要在运行的控制保护系统中进行软件置数,用于屏蔽调试系统与运行系统间的总线故障。
锦苏工程同里换流站在交流场带电阶段、极1低端阀组带电阶段,严格按照上述的安全隔离方案进行实施,带电设备能够安全运行,其它设备能够同步施工、调试,安全隔离措施效果显著。
随着国内特高压直流工程建设的日益成熟,在工程建设过程中换流站设备的分阶段带电投运亦将会成为常态,作为安全生产和工程建设的保证,针对设备分阶段带电投运的安全隔离措施的实施也是必须的,虽然目前国内在特高压领域采用多种技术特点,在设备的接口形式上有一定差异,但安全隔离措施的内容则是一致的,因此本文对后期的特高压直流工程施工、建设、调试、投运有一定的指导和借鉴意义。