时间:2018-06-11 12:22
人气:
作者:admin
■通信系统;
■金融系统;
■工业自动化系统;
■互联网数据中心(IDC);
■多媒体数据中心(MDC);
■其他重要负载系统。
■外观设计:标准19寸黑色机柜;
■可维护性:在线热拔插,无需转旁路;
■可扩展性:实现在线扩容,在线升级,在线维护;
■绿色节能:高效率、低热损耗、对电网无污染;
■高性价比:降低用户初期购置和日后扩容维护及运营成本;
■高可靠性:解决单点故障的瓶颈,为关键负载提供可靠电源保护;
■具有高抗干扰性:保证无论来自市电或UPS供电本身的“电源干扰”尽可能地被消除,包括传导干扰与辐射干扰。
互联网数据中心(IDC)和多媒体数据中心(MDC)是高速互联网的调控中心。用户对它们所承担的对信息资源(数据、语音和图像信息)的远程处理、存储和转送的“时效性”要求极高。哪怕是仅几秒钟的“停机”均会给整个互联网的安全运行和用户的生产经营带来无法估量的损失。严重时甚至会造成社会和经济生活的严重瘫痪。因此,IDC必须向用户提供365×24h连续不断的高速、安全和可靠的信息资源增值服务。为达此目的,从设计原则上讲,承担着向IDC机房供电任务的整个电源系统都必须采用具有高度“容错”功能的冗余式的供电方案,以确保无论是在市电电网出故障时或是在任何模块(包括系统控制模块)发生故障时,还是在进行日常维护/检修操作时或因故致使保险丝烧毁/断路器开关“跳闸”时,互联设备均应由“在线式UPS”的逆变器电源来供电,而不应进入由普通的市电电源/应急备用发电机组经UPS的交流旁路来供电的状态。这是因为只有“在线式UPS”的逆变器电源才有可能向用户的负载提供同时具有稳压、无频率“突变”,无干扰和波形失真度极小的高质量正弦波电源。对于包括后备式UPS,在线互动式UPS在内的“非在线式UPS”来说,它们主要对输入电源的电压进行调整,对输入电压的频率波动,各种电源干扰和电压失真度并无“实质性”的改善。这就意味着,在整个供电系统中,不应存在单点“瓶颈”故障隐患。为此,应尽可能地配置具有高度“容错”功能的UPS冗余供电系统。也就是说,在这种UPS供电系统的运行中,即使遇到某些“部件”偶然发生“故障”时,整个UPS供电系统必须仍能正常工作。
相对于传统意义上的UPS,在双总线系统中采用模块化(N+X)UPS配置具有更高的优势。在行业用户的信息网络供电系统建设中,经常会对高端UPS的容量产生错误的、或是过低或是过高的预计,其结果可能会导致采购成本过高、无法满足负载需要或造成资源、空间及能源浪费等情况。双总线模块化(N+X)通过可扩充的模块结构有效的解决了这一问题,它可以帮助用户在未来发展不明确的情况下分阶段进行建设和投资。当用户的用电负载需求增加的时候,只需要根据用电规划阶段性的增加功率模块即可。同时,通过模块化的整合,能够充分满足供电系统的扩展性需要,并具有更灵活的机动性及更好的可靠性,是电源保护领域未来发展的趋势和里程碑。此外,在传统高端UPS产品中,一直存在着单台UPS容易出现单点故障的问题,以往用户对此的安全保障措施是采用传统的“1+1”或“N+1”的冗余机制,这不仅增加了采购、安装及维护成本,而且只能容错一次。而在双总线模块化(N+X)系统中,各并联模块皆为内置冗余的智能型独立个体,无需系统控制器对并联系统进行集中性的控制。当任何模块(包括系统控制模块)发生故障后,该冗余设计将会实现最大程度的故障冗余,同时还可以允许用户根据自身的需求选择超过一次容错率的冗余。也就是说在双总线模块化(N+X)的系统下,用户只需要购买相应的功率模块,即可实现“N+X”的故障冗余及升级扩容。双总线模块化(N+X)系统可以有效地解决传统UPS中存在的制约性问题,进而使得用户获得了极佳的扩展性,并且可以在必要的时候自行对系统进行自主的分配与集成。既满足了后期设备的所需扩展,又降低了用户的初期购置成本。
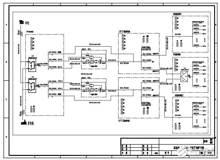
根据当今UPS产业的技术发展水平,以选用具有“双总线输入”和“双总线输出”供电功能的模块化(N+X)UPS冗余供电系统为宜。它是由如下几部分供电系统所构成的:
双总线输入供电系统基本配置为:由市电输入电源+备用发电机组+“自动切换”控制柜+输入配电柜。自动切换控制系统时刻监视着各种输入电源的实时运行状态,并确保总是将其中最可靠的一路电源送到UPS的输入端。对于某些重要的IDC机房而言,其“应急发电机”电源实际上是一套由多台柴油发电机+发电机并机控制柜所组成的冗余式发电机供电系统。
为了消除可能出现在UPS并机系统输出端与用户端之间的“单点瓶颈”故障隐患,有必要配置双总线模块化(N+X)UPS的输出配电系统。其基本配置是由“N+1”型模块化UPS冗余供电系统(优选“1+1”或“2+1”型并机供电方案)+输出配电柜+负载自动切换开关(LTS)所组成的UPS输出供电系统。对于某些要求极高的场所,还应配置由负载同步控制器(LBS)+两套“N+1”型模块化(N+X)UPS冗余供电系统所组成的具有极高“容错”功能的供电系统。鉴于目前在IDC机房中所用的服务器和磁盘阵列机等产品中有(30~50)%为采用“双电源输入供电”体制的产品,对于这些设备,可以直接将分别来自两套“N+1”型并机系统的电源连接到这种“双电源输入设备”的两个输入端上。对于采用“单电源输入供电”方式的关键负载,则是将分别来自两套“N+1”型并机系统的电源首先连接到“负载自动切换开关”(常见的是STS型的静态开关和SS型的快速切换开关)的两个输入端上,然后再将用户的关键设备连接到“负载自动切换开关”的输出端上。
评估UPS系统履行职责的可靠性,不仅要考量UPS的MTBF,还要考量UPS的MTTR及市电的MTBF。当UPS发生故障的同时市电也发生故障时,负载将会失去电力,也就是说UPS关键职责的失效。负载暴露在没有保护的市电之下的时间长短取决于维修时间的长短。如果维修一台UPS需一周时间,而市电的平均无故障时间也是一周,那么,UPS发生故障时,负载将很可能失去电力。如果UPS的MTTR是1小时,那么市电的MTBF将不会对关键负载的失效概率产生很大影响。很显然,降低UPS的 MTTR将会降低对关键负载的失效概率。降低UPS的MTTR最好的方法就是尽量减少可能影响UPS维修的因素 。双总线模块化(N+X)UPS因为具有在线热插拔的功能,自然是最好的选择。
从设计原则上讲,承担供电任务的整个电源系统都必须采用具有高度“容错”功能的冗余式的供电方案,以确保无论是在市电电网出故障时或是在任何模块(包括系统控制模块)发生故障时,还是在进行日常维护/检修操作时或因故致使保险丝烧毁/断路器开关“跳闸”时,互联设备均应由“在线式UPS”的逆变器电源来供电,而不应进入由普通的市电电源/应急备用发电机组经UPS的交流旁路来供电的状态。
综上所述,双总线模块化(N+X)UPS具有最长的履行职责平均无故障时间(MTBF),最小的平均维修时间 (MTTR)及最强的抗市电干扰风险能力及高度“容错”功能,应用这套方案系统将得到稳定、高效、安全的24h不间断电源电力支持,堪称最新专业机房电源系统的典范,是最可靠的电力保证。
为了满足信息网络对IDC和MDC机房实现无人或少人值守管理和远程集中监控的需求,从而提高对UPS供电系统的“可管理性”,对互联网数据中心来说,除本身应配置对它的所有IT设备进行实时监控的网络管理系统之外,还应建立一套对“非IT设备”的集中监控体系,以便对诸如空调机、配电柜、电池组、发电机组、漏水警报、安全系统和消防系统等设备的运行情况进行实时的监控和分析。为此,要求所选用的UPS冗余供电系统应配置有如下通信接口:
1)在UPS上配置RS232/RS485接口,Modem或SNMP适配器;
2)用于显示UPS的工作状态/报警信息的“继电器干接点”型的输出通信接口;
3)“用户自定义”输入信号(门禁、烟雾、温度、湿度等报警信号)的“继电器干接点”型的输入通信接口;
4)对各种“非IT设备”配置必要的数据采集器;
5)配置相应的集中监控和管理软件包或通信协议。
利用上述的输入/输出通信接口和相应的电源管理软件或用户现有的网管集中监控系统就可以组成所谓的智能化IDC和MDC机房的集中监控系统。在这样的网管系统中,可实现的主要调控功能有:
1)调阅在UPS的LED/LCD显示屏上所能观察到的UPS的实时运行参数(例如:输入/输出电压、电流、频率、有功功率/视在功率、功率因数及电池组的充放电电压/电流等参数);
2)“互联网数据中心”所用的各种“机房环境调控设备”的“运行大事记”(自各种设备开机以来,按时序排列的,曾出现过的故障/报警/用户所执行过的操作等信息);
3)万一发生故障时,执行网络广播报警(弹出报警窗口),电话或手机的自动拨号、自动传呼或发E-Mail等操作,以便通知值班人员及时到现场排除故障或维修;
4)对UPS的备用电池组执行可编程的电池容量“自测试”操作,如果发现电池的“实有容量(Ah)”偏低时,还应自动发出“电池需要更换”的预报警信号;
5)将“用户的自定义”报警信号(例如:温度/湿度、门禁、消防等报警信号)经UPS的输入通信接口被纳入IDC机房或智能化楼宇的统一的集中监控系统;
6)由IDC和MDC的主管当局所指定的人员,根据不同的授权权限,分级“重新调整”/设置各种相应设备的运行参数或执行远程的故障分析/诊断操作。
运行示意图:

供电原理图:

上一篇:对于光端机各种类型接口的了解
下一篇:了解一下CPU的各种接口
从profibusDP转ModbusTCP,一网打尽转换技巧!