时间:2023-03-03 15:41
人气:
作者:admin
今天我们来看变频器柜控制回路就地启动泵和监控断路器状态。
在控制回路中,往往引入各种电信号来实现控制功能,电气信号来自于位置状态,故状态障,警告状态等。
图一就介绍了断路器状态、手车状态、10KV远程状态、过载状态的电器设备信号。
变频器控制柜监控断路器的状态,利用断路器的电信号接通中间继电器的线圈,这样的控制原理在高压回路中比较常见。
在这里的指示电路可以在就地检查系统的状态,可以通过观察来判断监控状态运行情况。

图一
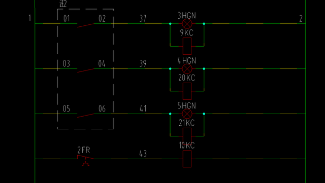
从图二我们能够看到变频器控制柜的中间继电器线圈的作用,通过中间继电器触点将断路器的位置、故障信号传递给变频器。
我们可以看到触点的两端没有接入电路,我们需要考虑的是这种情况是系统提供电源。
图二的触点位置来自与继电器,但是它要将电信号反馈给变频器,变频器会根据触点的状态来做出相关动作。
启停状态在这里我们还要结合图三来理解原理图。

图二
从图三大家会看到就地控制,启泵、停泵、急停。
在控制柜上,我们往往看到红色的急停按钮,在在这里,电路中急停是不能用触点来代替的,这里需要大家在看图是特别注意。

图三
我们今天介绍的内容就是如图联系几张电路图识别工作原理,也许初学者可能看图特别困难,坚持每天看图,一定会掌握看图方法的。
上一篇:变频器柜外部接线的作用