时间:2023-03-02 14:00
人气:
作者:admin
电路图如下:

梯形图和指令语句表如下:

PLC控制指令语句表如下:

输入/输出设备及I/O配置如下:

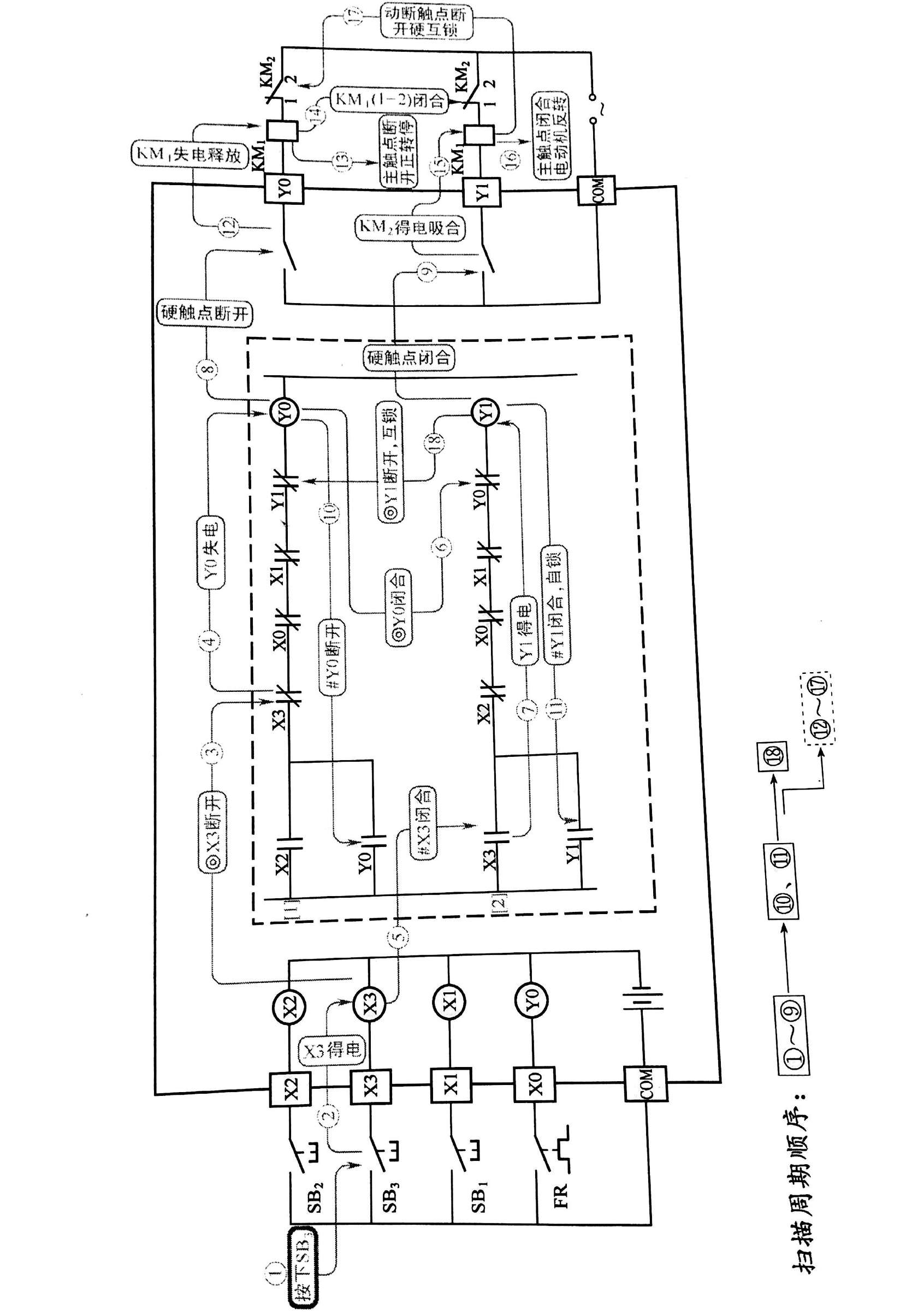
正转启动如下:
按下正转启动按钮SB2,输入继电器×2得电,其动合触点#×2闭合,输出继电器YO得电,并自锁,使接触器KM1得电吸合。KM1的辅助动断触点KM1(1-2)断开,使KM2不能得电,实现硬互锁其主触点闭合,电动机M正转启动。
正转启动过程如下:

若需要电动机M反转,可以先按下停止按钮SB1,使KM1失电释放,其主触点断开,电动机M停转,同时其辅助动断触点KM,(1-2)复位闭合后,KM2才有得电条件。这时,按下反转启动按钮SB3,接触器KM2得电吸合,其主触点闭合,电动机M反转启动其辅助动断触点KM2(1-2)断开,使KM1无法得电,实现硬互锁。也可以直接按下反转启动按钮SB3,接触器KM1先失电、接触器KM2后得电。
其过程如下:

停止过程如下:
按下停止按钮SBl或过载保护(FR)动作,通过pLC的输入端子×1或XO,使输入继电器×1或XO得电,其动断触点断开,都可以使输出继电器YO或Y1失电,进而使kM1或KM2失电释放,电动机停止运行。
下一篇:伺服电动机控制电路原理详解