时间:2018-07-07 11:30
人气:
作者:admin
变频器是应用变频技术与微电子技术,通过改变电机工作电源频率方式来控制交流电动机的电力控制设备。变频器主要由整流(交流变直流)、滤波、逆变(直流变交流)、制动单元、驱动单元、检测单元微处理单元等组成。变频器靠内部IGBT的开断来调整输出电源的电压和频率,根据电机的实际需要来提供其所需要的电源电压,进而达到节能、调速的目的。

变频器可分为电压型和电流行两种变频器。
电压型是将电压源的直流变换为交流的变频器,直流回路的滤波是电容。
电流型是将电流源的直流变换为交流的变频器,其直流回路滤波是电感。是整流器,整流器,逆变器。
而变频器的主电路由整流器、平波回路和逆变器三部分构成,将工频电源变换为直流功率的“整流器”,吸收在变流器和逆变器产生的电压脉动的“平波回路。

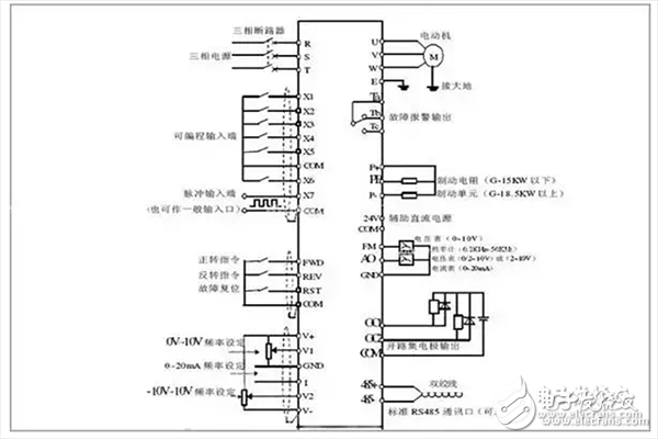
上图是一副变频器接线图。在变频器的安装中,有一些问题是需要注意的。例如变频器本身有较强的电磁干扰,会干扰一些设备的工作,因此我们可以在变频器的输出电缆上加上电缆套。又或变频器或控制柜内的控制线距离动力电缆至少100mm等等。


1、电源应接到变频器输入端R、S、T接线端子上,一定不能接到变频器输出端(U、V、W)上,否则将损坏变频器。接线后,零碎线头必须清除干净,零碎线头可能造成异常,失灵和故障,必须始终保持变频器清洁。在控制台上打孔时,要注意不要使碎片粉末等进入变频器中。
2、在端子+,PR间,不要连接除建议的制动电阻器选件以外的东西,或绝对不要短路。
3、电磁波干扰,变频器输入/输出(主回路)包含有谐波成分,可能干扰变频器附近的通讯设备。因此,安装选件无线电噪音滤波器FR-BIF或FRBSF01或FR-BLF线路噪音滤波器,使干扰降到最小。
4、长距离布线时,由于受到布线的寄生电容充电电流的影响,会使快速响应电流限制功能降低,接于二次侧的仪器误动作而产生故障。因此,最大布线长度要小于规定值。不得已布线长度超过时,要把Pr.156设为1。
5、在变频器输出侧不要安装电力电容器,浪涌抑制器和无线电噪音滤波器。否则将导致变频器故障或电容和浪涌抑制器的损坏。
6、为使电压降在2%以内,应使用适当型号的导线接线。变频器和电动机间的接线距离较长时,特别是低频率输出情况下,会由于主电路电缆的电压下降而导致电机的转矩下降。
7、运行后,改变接线的操作,必须在电源切断10min以上,用万用表检查电压后进行。断电后一段时间内,电容上仍然有危险的高压电。

变频器的控制电路大体可分为模拟和数字两种。
1、控制电路端子的接线应使用屏蔽线或双绞线,而且必须与主回路,强电回路(含200V继电器程序回路)分开布线。
2、由于控制电路的频率输入信号是微小电流,所以在接点输入的场合,为了防止接触不良,微小信号接点应使用两个并联的节点或使用双生接点。
3、控制回路的接线一般选用0.3~0.75平方米的电缆。

1、由于在变频器内有漏电流,为了防止触电,变频器和电机必须接地。
2、变频器接地用专用接地端子。接地线的连接,要使用镀锡处理的压接端子。拧紧螺丝时,注意不要将螺丝扣弄坏。
3、镀锡中不含铅。
4、接地电缆尽量用粗的线径,必须等于或大于规定标准,接地点尽量靠近变频器,接地线越短越好。
5.变频器的作用

1.变频器可以调整电机的功率,实现电机的变速运行,以此来达到省电的目的。例子体现在离心风机和水泵上,当离心风机和水泵使用了变频器后,操作人员变频调速,可根据需要轻松控制流量,从而节省了能源
2.变频器可以降低电力线路中电压的波动,避免了一旦电压发生异常而导致设备的跳闸或者出现异常运行的现象。

3.变频器可以减少对电网的冲击,从而有效地减少了无功损耗,增加了电网的有效功率。
4.变频器还可以减少机械中传动部件之间的磨损,因此,在一定程度上也降低了成本,提高了系统的稳定性。
5.此外,变压器的控制功能非常齐全,可以很好的配合其他的控制设备或者一起,从而实现集中监视和实时控制,为用户解决了很多系统兼容性的麻烦等问题

主图: